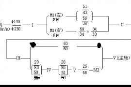
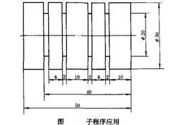
图文 第5页