CAD绘图行业中做了很多年了,很钟情于LISP程序。很多时候我们需要的功能可以和中望CAD的开发工程师联系,一起探讨需要编译的LISP程序。下面介绍一个由中望CAD开发工程师按我们要求编译的一个LISP程序,带来的设计速度非同凡响。
下图是需要绘制的一个地面排版图。我们的一般步骤就是先找出一个单元格,将其一个一个的在地面框中相接,再用修剪命令逐个修剪;设计时间可是花了1个工作日。若是单元图案需要少许更改,原来的图纸就废掉了,又得根据新图一个一个的再重新排版;现在用中望CAD提供的LISP程序,按如下操作30分钟内就能搞定。


第一步:绘制地面边框,并用PE命令将其合并成多线段:

第二步:找出图中的一个单元格,此单元格上下左右相接出现的图案都将是能够一直贯通的,并将此单元格建立成块;

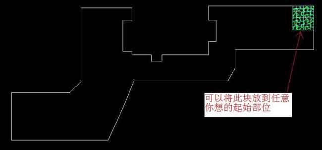
第三步:将建立的块放入到地面框内,想从哪个部位开始排版就将单元格块放到哪个部位;如图所示:

第四步:启动超级填充程序:选择单元格块,在地面图框内任意部位点击一下,回车,等待中望CAD自动运行填充和边界修剪;(图案难易大小不同,系统自动填充和修建的时间不一样)自动完成如下图:

第五步:若是需要将单元格做局部修改,例如填充,我们可以直接进入单元格块内,进行局部填充,再保存图块。此时整个地面就会跟着发生变化,想怎么改方案都很快捷。


免责声明:
1;所有标注为智造资料网zl.fbzzw.cn的内容均为本站所有,版权均属本站所有,若您需要引用、转载,必须注明来源及原文链接即可,如涉及大面积转载,请来信告知,获取《授权协议》。
2;本网站图片,文字之类版权申明,因为网站可以由注册用户自行上传图片或文字,本网站无法鉴别所上传图片或文字的知识版权,如果侵犯,请及时通知我们,本网站将在第一时间及时删除,相关侵权责任均由相应上传用户自行承担。
[complaint:内容投诉]
智造资料网打造智能制造3D图纸下载,在线视频,软件下载,在线问答综合平台 » 中望CAD绘制地面排版图(图文教程)
1;所有标注为智造资料网zl.fbzzw.cn的内容均为本站所有,版权均属本站所有,若您需要引用、转载,必须注明来源及原文链接即可,如涉及大面积转载,请来信告知,获取《授权协议》。
2;本网站图片,文字之类版权申明,因为网站可以由注册用户自行上传图片或文字,本网站无法鉴别所上传图片或文字的知识版权,如果侵犯,请及时通知我们,本网站将在第一时间及时删除,相关侵权责任均由相应上传用户自行承担。
[complaint:内容投诉]
智造资料网打造智能制造3D图纸下载,在线视频,软件下载,在线问答综合平台 » 中望CAD绘制地面排版图(图文教程)

