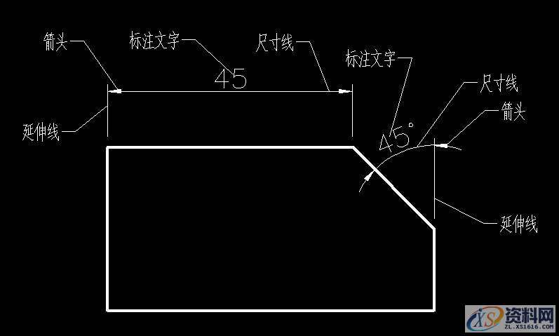
一张完整的工程设计图,少不了准确的尺寸标注。在CAD中,尺寸标注是建立在精准绘图的基础上的,只要图纸的尺寸足够精确,就不需要我们花时间去计算尺寸,CAD系统会自动给出标准的尺寸数据,并且标注尺寸会与标注对象相关联,如果修改了标注对象,尺寸也会自动更新。一般标注尺寸的组成部分由尺寸线、尺寸界线、箭头、标注文字4个部分组成,如下图:

本文将给大家介绍CAD尺寸标注中的线性标注与对齐标注的使用方法。
线性标注:线性标注命令可以提供水平和垂直方向上的长度尺寸标注
1.使用CAD软件绘制一个不规则多边形,如图所示;

2,在命令行中输入【DIMLINEAR】并按回车键确认,或者在菜单栏的【标注】下拉列表找到并点击【线性】,激活线性标注命令;
3.选择对象时,指定需要标注对象的起点和终点即可,系统会自动显示出对象在水平或垂直方向的长度数值;


4.指定尺寸线的位置,通过移动标注放置到合适的位置;
5.对于斜线的操作同上,在指定尺寸线位置时可以通过向上拉或向右拉,拉出水平方向和垂直方向的线性标注,使用对象捕捉工具捕捉到前一个标注箭头尖端位置,使得标注与前一个标注对齐;


6.重复线性标注操作,最终效果如下图:

对齐标注:对齐标注命令可以提供与拾取对象对齐的长度尺寸标注
1.使用CAD软件绘制一个不规则多边形;
2. 在命令行中输入【DIMALIGNED】并按回车键确认,或者在菜单栏的【标注】下拉列表找到并点击【对齐】,激活对齐标注命令;
3.选择对象时,指定需要标注对象的起点和终点即可,系统会自动显示出拾取对象的长度数值;
4.移动标注将其放置到合适的位置,标注结果如图:

智能未来,未来已来
东莞潇洒职业培训学校开设课程有:高升专、专升本学历提升、全日制中职学校学位、积分入户、数控编程培训、塑胶模具设计培训,压铸模具设计培训、冲压模具设计培训,精雕、ZBrush圆雕培训、Solidworks产品设计培训、pro/E产品设计培训、AutoformR7工艺分析培训,非标自动化设计、PLC编程、CNC电脑锣操机、文职培训、电商培训、平面设计等培训、电商培训,潇洒职业培训学校线下、线上等网络学习方式,随到随学,上班学习两不误,欢迎免费试学!
联系电话:13018639933(微信同号)QQ:1939314927
学校官网:www.dgxspx.com 智造人才网:www.58hr.net
学习地址:东莞市横沥镇新城工业区兴业路121号-潇洒职业培训学校
1;所有标注为智造资料网zl.fbzzw.cn的内容均为本站所有,版权均属本站所有,若您需要引用、转载,必须注明来源及原文链接即可,如涉及大面积转载,请来信告知,获取《授权协议》。
2;本网站图片,文字之类版权申明,因为网站可以由注册用户自行上传图片或文字,本网站无法鉴别所上传图片或文字的知识版权,如果侵犯,请及时通知我们,本网站将在第一时间及时删除,相关侵权责任均由相应上传用户自行承担。
[complaint:内容投诉]
智造资料网打造智能制造3D图纸下载,在线视频,软件下载,在线问答综合平台 » CAD教程:尺寸标注中的线性标注与对齐标注

