浩辰CAD2012_DWF参考底图(图文教程)

DWF参考底图功能成为浩辰CAD2012测试版新的一个功能热点,谈到dwf参考底图,就不得不提到DWF文件格式。DWF图形格式是由Autodesk开发的一种开放、安全的文件格式,它可以将丰富的设计数据高效率地传送给需要查看、评审或打印这些数据的任何人。DWF文件高度压缩,格式超小,传递迅速,但是,DWF文件格式不可编辑,一般只能以外部参照的形式插入到图纸中。今天就和大家分享一下,以浩辰CAD2012测试版为例,介绍一下“DWF参考底图”。

  运行浩辰CAD2012后,从菜单插入【DWF参考底图】,打开DWF文件,浏览选定文件并单击确定,弹出【插入参数】对话框,选择参数后将DWF文件插入到当前图纸中,见图1。

浩辰CAD2012_DWF参考底图(图文教程),浩辰CAD2012_DWF参考底图,文件,插入,CAD2012,第1张

图1

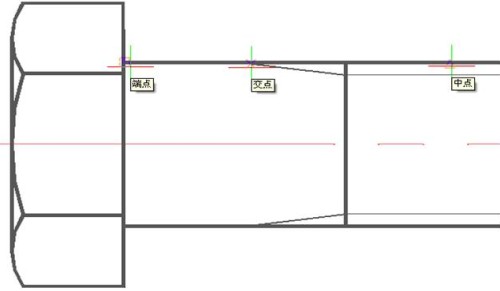
   一般,与光栅图像插入后只能捕捉到图像外框不同,然而浩辰CAD2012测试版精确捕捉到对DWF图纸内对像的中点、端点、交点等特征点,单就这一点而言,其参照价值要比光栅图像大得多,见图2。

浩辰CAD2012_DWF参考底图(图文教程),浩辰CAD2012_DWF参考底图,文件,插入,CAD2012,第2张

图2

 

  有了DWF参考底图功能,设计师就可以轻松地攫取DWF文件上巧夺天工的设计灵感。究竟浩辰CAD2012测试版众多的功能特点中还有哪些令人兴奋的CAD制图新功能,让我们拭目以待吧!

免责声明:
1;所有标注为智造资料网zl.fbzzw.cn的内容均为本站所有,版权均属本站所有,若您需要引用、转载,必须注明来源及原文链接即可,如涉及大面积转载,请来信告知,获取《授权协议》。
2;本网站图片,文字之类版权申明,因为网站可以由注册用户自行上传图片或文字,本网站无法鉴别所上传图片或文字的知识版权,如果侵犯,请及时通知我们,本网站将在第一时间及时删除,相关侵权责任均由相应上传用户自行承担。
[complaint:内容投诉]
智造资料网打造智能制造3D图纸下载,在线视频,软件下载,在线问答综合平台 » 浩辰CAD2012_DWF参考底图(图文教程)