UG NX教程:变向行位的延迟抽芯结构设计模具大致结构

设计中,有些结构是非常有代表性的,摸透了很容易做到触类旁通,以下一例就是如此,其中包括了双节变向,延迟抽芯,及类似于哈夫的抽块结构,大家可以探讨一下!


UG NX教程:变向行位的延迟抽芯结构设计模具大致结构,结构设计,模具,结构,第1张
UG NX教程:变向行位的延迟抽芯结构设计模具大致结构,结构设计,模具,结构,第2张

产品3D图片

UG NX教程:变向行位的延迟抽芯结构设计模具大致结构,结构设计,模具,结构,第3张UG NX教程:变向行位的延迟抽芯结构设计模具大致结构,结构设计,模具,结构,第4张UG NX教程:变向行位的延迟抽芯结构设计模具大致结构,结构设计,模具,结构,第5张UG NX教程:变向行位的延迟抽芯结构设计模具大致结构,结构设计,模具,结构,第6张UG NX教程:变向行位的延迟抽芯结构设计模具大致结构,结构设计,模具,结构,第7张UG NX教程:变向行位的延迟抽芯结构设计模具大致结构,结构设计,模具,结构,第8张UG NX教程:变向行位的延迟抽芯结构设计模具大致结构,结构设计,模具,结构,第9张


UG NX教程:变向行位的延迟抽芯结构设计模具大致结构,结构设计,模具,结构,第10张
UG NX教程:变向行位的延迟抽芯结构设计模具大致结构,结构设计,模具,结构,第11张

产品信息

客户:SPI

模号: C06034, C06035

产品名称:Lower Finish Panel

胶料:PC/ABS

缩水率:1.006

型腔数:1

模具寿命:50万次

产品外形尺寸:96.31X245.72X134.15


UG NX教程:变向行位的延迟抽芯结构设计模具大致结构,结构设计,模具,结构,第12张
UG NX教程:变向行位的延迟抽芯结构设计模具大致结构,结构设计,模具,结构,第13张

产品分析

产品上有多个柱位和孔位,因此把柱位和孔位的轴向方向作为出模方向。如上图所示,红色面为产品的定模一侧的胶位面,蓝色面为动模一侧的胶位面。根据产品的出模方向来分析产品在模具上的结构,可以看到,产品两侧需要做两个滑块,其中一侧的产品形状如图所示(两侧形状一样)


UG NX教程:变向行位的延迟抽芯结构设计模具大致结构,结构设计,模具,结构,第14张UG NX教程:变向行位的延迟抽芯结构设计模具大致结构,结构设计,模具,结构,第15张


在圆孔下方有一圈骨位,与出模方向成两个角度,具体如图所示 蓝色面为后模面,红色面为倒扣面,两侧还有两个方孔,因此需要设计特殊抽芯机构来成型此处胶位。


UG NX教程:变向行位的延迟抽芯结构设计模具大致结构,结构设计,模具,结构,第16张UG NX教程:变向行位的延迟抽芯结构设计模具大致结构,结构设计,模具,结构,第17张UG NX教程:变向行位的延迟抽芯结构设计模具大致结构,结构设计,模具,结构,第18张UG NX教程:变向行位的延迟抽芯结构设计模具大致结构,结构设计,模具,结构,第19张


UG NX教程:变向行位的延迟抽芯结构设计模具大致结构,结构设计,模具,结构,第20张
UG NX教程:变向行位的延迟抽芯结构设计模具大致结构,结构设计,模具,结构,第21张

抽芯结构原理分析


此抽芯机构的名称可称为一托四延迟抽芯滑块。


UG NX教程:变向行位的延迟抽芯结构设计模具大致结构,结构设计,模具,结构,第22张UG NX教程:变向行位的延迟抽芯结构设计模具大致结构,结构设计,模具,结构,第23张UG NX教程:变向行位的延迟抽芯结构设计模具大致结构,结构设计,模具,结构,第24张UG NX教程:变向行位的延迟抽芯结构设计模具大致结构,结构设计,模具,结构,第25张UG NX教程:变向行位的延迟抽芯结构设计模具大致结构,结构设计,模具,结构,第26张UG NX教程:变向行位的延迟抽芯结构设计模具大致结构,结构设计,模具,结构,第27张


产品周圈骨位两侧的两个孔由两个活动小行位成型。


UG NX教程:变向行位的延迟抽芯结构设计模具大致结构,结构设计,模具,结构,第28张


小滑块和外面的活动套筒和侧边的7字形耳位形成滑动配合,小滑块可以沿着7型导滑槽的方向与套筒相互滑动。


UG NX教程:变向行位的延迟抽芯结构设计模具大致结构,结构设计,模具,结构,第29张UG NX教程:变向行位的延迟抽芯结构设计模具大致结构,结构设计,模具,结构,第30张UG NX教程:变向行位的延迟抽芯结构设计模具大致结构,结构设计,模具,结构,第31张


小滑块下端成J字形,与中心镶件上的矩形孔配合,并且可以做相对滑动。


UG NX教程:变向行位的延迟抽芯结构设计模具大致结构,结构设计,模具,结构,第32张


因此,两个小行位与活动套筒之间,小行位与中心镶件之间,中心镶件和活动套筒之间都有相对运动。它们的动力和运动顺序控制都来源于底下的大行位,大行位靠油缸带动。


UG NX教程:变向行位的延迟抽芯结构设计模具大致结构,结构设计,模具,结构,第33张
UG NX教程:变向行位的延迟抽芯结构设计模具大致结构,结构设计,模具,结构,第34张

动作顺序说明

1. 活动套筒下滑,小滑块脱倒扣,中心镶件不动。红色的活动套筒下端和大滑块通过斜度的T型槽连接,台阶以上部分为直身面和后模肉滑动配合,大滑块后端和油缸螺纹连接。


UG NX教程:变向行位的延迟抽芯结构设计模具大致结构,结构设计,模具,结构,第35张UG NX教程:变向行位的延迟抽芯结构设计模具大致结构,结构设计,模具,结构,第36张


开模后油缸向后抽动,拉动大滑块一同后退,活动套筒在斜面T型槽的作用下沿着抽芯方向下落后退。大滑块和中心镶件有一段平面接触,用来控制延迟抽芯。在油缸带动大滑块后退的开始一段距离内,由于平面位置的作用,中心镶件相对模肉和产品静止不动,活动套筒在模肉和中心镶件之间滑动。


UG NX教程:变向行位的延迟抽芯结构设计模具大致结构,结构设计,模具,结构,第37张


头上两个小滑块和套筒之间通过7型槽配合,7型槽的方向相对于套筒的运动方向成一定角度,小滑块下端成J型,截面为矩形,两个滑块都同中心镶件滑动配合。在滑动套筒向下抽动时,小滑块在7型槽和中心镶件孔的作用下,向外抽芯,脱出倒扣。


UG NX教程:变向行位的延迟抽芯结构设计模具大致结构,结构设计,模具,结构,第38张


小滑块抽芯之后的相对位置图:


UG NX教程:变向行位的延迟抽芯结构设计模具大致结构,结构设计,模具,结构,第39张UG NX教程:变向行位的延迟抽芯结构设计模具大致结构,结构设计,模具,结构,第40张


2. 小滑块,中心镶件和活动套筒一同后退抽芯,抽出所有倒扣面。当小滑块抽开一个安全距离之后,中心镶件走完大滑块上的水平距离,此时中心镶通过下段的台阶面,被套筒带动一同沿着模肉套筒孔的方向与大滑块的T槽斜面做相对运动。


UG NX教程:变向行位的延迟抽芯结构设计模具大致结构,结构设计,模具,结构,第41张UG NX教程:变向行位的延迟抽芯结构设计模具大致结构,结构设计,模具,结构,第42张


两个小滑块也被套筒和中心镶件带着一起向下运动,直到所有运动件都完全脱开产品胶位倒扣面,抽芯动作完成。抽芯完成之后的小滑块,活动套筒和中心镶件的相对位置图如下:


UG NX教程:变向行位的延迟抽芯结构设计模具大致结构,结构设计,模具,结构,第43张UG NX教程:变向行位的延迟抽芯结构设计模具大致结构,结构设计,模具,结构,第44张UG NX教程:变向行位的延迟抽芯结构设计模具大致结构,结构设计,模具,结构,第45张


抽芯动作全部完成后,产品由顶针顶出。


UG NX教程:变向行位的延迟抽芯结构设计模具大致结构,结构设计,模具,结构,第46张
UG NX教程:变向行位的延迟抽芯结构设计模具大致结构,结构设计,模具,结构,第47张

运动行程计算

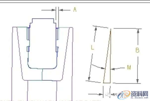
1 小滑块的行程计算


UG NX教程:变向行位的延迟抽芯结构设计模具大致结构,结构设计,模具,结构,第48张


如上图所示,A为产品倒扣距离,小滑块行程为C,由于空间的限制,小滑块的行程约等于产品倒扣加0.5mm,即C=A+0.5,B为活动套筒在第一次抽芯的行程,C为小滑块的行程即抽芯距离,M为7形槽和活动套筒运动方向之间的角度。B,C,L三条边组成一个直角三角形,在确定行程的时候直接画出以上的直角三角形,根据已知条件即可得出所需的各个长度了。


2 中心镶件延迟距离计算

如下图所示,B为中心镶件的延迟距离即活动套筒第一次抽芯的抽芯距离,,D为中心镶件在大滑块的平面上的滑动距离,D=F ,E为活动套筒在大滑块的斜度T槽中滑动的距离。B,E,F三条边组成一个三角形,我们可以根据已知条件B和角度G,可求出F和E的数值。


UG NX教程:变向行位的延迟抽芯结构设计模具大致结构,结构设计,模具,结构,第49张


3 中心镶件抽芯行程计算

下图中H为产品倒扣,J为中心镶件抽芯行程,J大于或等于H+2mm,K为大滑块运动距离,I为为活动套筒和中心镶件一起在大滑块的斜度T槽中滑动的距离,N为T型槽和大滑块运动方向之间的角度。图中I,J,K共同组成一个三角形,我们可以根据已知条件H和角度N,求出K和I的数值。


UG NX教程:变向行位的延迟抽芯结构设计模具大致结构,结构设计,模具,结构,第50张


4. 油缸行程计算

我们在选择油缸型号的时候必须知道油缸的工作行程,在本案中,油缸的工作行程即大滑块的总运动距离:K+F,然后根据计算结果加上10到20MM的余量选择油缸。


模具大致结构

UG NX教程:变向行位的延迟抽芯结构设计模具大致结构,结构设计,模具,结构,第51张UG NX教程:变向行位的延迟抽芯结构设计模具大致结构,结构设计,模具,结构,第52张UG NX教程:变向行位的延迟抽芯结构设计模具大致结构,结构设计,模具,结构,第53张

智能未来,未来已来
东莞潇洒职业培训学校开设课程有:高升专、专升本学历提升、全日制中职学校学位、积分入户、数控编程培训、塑胶模具设计培训,压铸模具设计培训、冲压模具设计培训,精雕、ZBrush圆雕培训、Solidworks产品设计培训、pro/E产品设计培训、AutoformR7工艺分析培训,非标自动化设计、PLC编程、CNC电脑锣操机、文职培训、电商培训、平面设计等培训、电商培训,潇洒职业培训学校线下、线上等网络学习方式,随到随学,上班学习两不误,欢迎免费试学!
联系电话:13018639933(微信同号)QQ:1939314927
学校官网:www.dgxspx.com 智造人才网:www.58hr.net
学习地址:东莞市横沥镇新城工业区兴业路121号-潇洒职业培训学校

免责声明:
1;所有标注为智造资料网zl.fbzzw.cn的内容均为本站所有,版权均属本站所有,若您需要引用、转载,必须注明来源及原文链接即可,如涉及大面积转载,请来信告知,获取《授权协议》。
2;本网站图片,文字之类版权申明,因为网站可以由注册用户自行上传图片或文字,本网站无法鉴别所上传图片或文字的知识版权,如果侵犯,请及时通知我们,本网站将在第一时间及时删除,相关侵权责任均由相应上传用户自行承担。
[complaint:内容投诉]
智造资料网打造智能制造3D图纸下载,在线视频,软件下载,在线问答综合平台 » UG NX教程:变向行位的延迟抽芯结构设计模具大致结构