4.1 导入视图
(1)点击工具栏中【新建】按钮
,弹出如图1所示的“新建”对话框,选择“绘图”按钮,创建模型gangdi的工程图;选用gb_a3模板,调入如图2所示的gb_a3图框。

图1 “新建”对话框

图2 GB_A3图框样式
(2)选择下拉菜单【插入】→【绘图视图】→【一般…】,弹出如图3所示的“绘图视图”对话框,从而插入缸底的主视图。
a) 在“视图类型”选项卡中“模型视图名”选为BOTTOM面;
b) “可见区域”中选中默认设置;
c) 在“比例”选项卡中
后输入0.75的比例值;
d) “剖面”选项卡中选择“2D截面”,然后单击
按钮;
设置为“全部”;在
下拉列表中选取已创建的剖截面A和B,剖切区域中选择“局部”,分别绘制对应两个不同剖切面的局部剖切区域,如图4所示,最后单击“确定”按钮;
e) 选择【视图显示】--【显示线型】--【无隐藏线】--【相切边显示样式】--【无】,点击应用,如图5所示。
f) 最后完成“视图状态、原点、对齐”选项卡的设置,从而完成缸底局部剖视图的绘制,如图6所示。

图3 一般视图“绘图视图”对话框

图4 “绘图视图”对话框中“剖面“的选项卡设置

图5 选择视图的显示类型

图6 缸底的主视图(局部剖视图)
该文章所属专题:Pro/E工程图教程
g) 选中缸底的主视图,点击鼠标右键,弹出如图7所示的菜单,选择“插入投影视图..”通过调整“绘图视图”对话框中的各个选项卡,插入缸底的左视图,如图8所示.

图7 下拉菜单

图8 缸底的左视图(局部剖视图)
4.2 标注
(1) 点击工具栏中的标注按钮
,弹出下图9所示的标注“菜单管理器”,通过选择所要标注的边、轴线等图元,完成缸底长度和宽度方向的尺寸标注;
注:对于直径和公差的标注,只需双击已标注的尺寸文字,通过修改如图10所示的“尺寸属性”对话框中的选项卡“属性、尺寸文本、尺寸样式”等的参数设置,从而完成缸底直径和公差的标注,如下图11所示。

图9 “标注”菜单管理器

(a)“尺寸属性”对话框中的“属性”选项卡

(b)“尺寸属性”对话框中的“尺寸文本”选项卡

(c)“尺寸属性”对话框中的“文本样式”选项卡
图10 “尺寸属性”对话框

图11 缸底的各种标注
该文章所属专题:Pro/E工程图教程
(2) 选择下拉菜单【插入】→【绘图符号】→【定制】命令。系统弹出“定制绘图符号”对话框,如图12所示。
a) 在“一般”选项卡中“类型”下拉菜单处选择“在图元上”;
b) “分组”选项卡中MECHINED中勾选ROUGHNESS选项;
c) “可变文本”选项卡中在aver_roughness后的方框中输入粗糙度值;
d) 单击“确定”按钮从而完成如图13所示的粗糙度符号的标注。 
图12 “定制绘图符号”对话框

图13 粗糙度的标注
(3) 点击“标注”按钮
,选中图中圆角、倒角,点击鼠标中键,分别完成缸底圆角和倒角的标注,如下图14所示:

图14 缸底圆角、倒角的标注
(4)创建基准平面
a) 选择下拉菜单【插入】→【模型基准】→【平面..】命令。系统弹出下图15所示的“基准”对话框,在此对话框中进行下列操作。

图15 “基准”对话框图
b) 在“基准”对话框中输入基准名称A。
c)单击该对话框中的“定义”选项组中的“在曲面上”按钮,然后选取图中面作为创建的基准面。
d)在对话框中的“类型”选项组中按下
按钮,此时在图中显示基准。
e)在“放置”选项中选择“在尺寸中..”从而拾取图中直径为90的尺寸。
f)单击“基准”对话框中“确定”按钮。完成缸底基准面的创建,如下图16所示。

图16 缸底的“基准”标注图
(5)形位公差的标注:
a) 选择【插入】→【几何公差..】命令,系统弹出图17所示的“几何公差”对话框。

(a)“几何公差”对话框中“基准模型”选项卡

(b)“几何公差”对话框中“基准参照”选项卡

(c)“几何公差”对话框中“公差值”选项卡
图17 “几何公差”对话框
b) 在“几何公差”对话框左边公差符号区域单击“垂直度”公差符号。
c) 定义公差参照,单击“参照”选项组中的“类型”文本框后面的下拉菜单,选取“特征”选项,在系统提示下,选择缸底的特征。.
d)定义公差的位置:单击“放置”选项组后文本框后面的下拉按钮,从弹出的列表中选取“带引线”选项,在弹出的菜单中选择“箭头”命令,完成公差位置的确定。
e)在“基准参照”选项卡中,从下拉菜单列表中选取基准A.
f) 在公差值选项卡中,输入公差值0.05。.
g) 通过以上即完成了形位公差垂直度的标注,如下图18所示。

图18 缸底的形位公差标注
h) 使用相同方法,完成其他位置处形位公差的标注。
(6)点击工具栏中“注释”按钮
,弹出“菜单管理器”,选择默认设置,完成技术要求和标题栏的填写,如下图19所示。.
(a)“注释”菜单管理器

(b) 技术要求的标注
图19 “注释”的标注样式
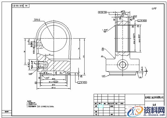
(7)通过以上工作,最终完成了缸底的完整工程视图,如图20所示。

图20 缸底的工程图
该文章所属专题:Pro/E工程图教程
1;所有标注为智造资料网zl.fbzzw.cn的内容均为本站所有,版权均属本站所有,若您需要引用、转载,必须注明来源及原文链接即可,如涉及大面积转载,请来信告知,获取《授权协议》。
2;本网站图片,文字之类版权申明,因为网站可以由注册用户自行上传图片或文字,本网站无法鉴别所上传图片或文字的知识版权,如果侵犯,请及时通知我们,本网站将在第一时间及时删除,相关侵权责任均由相应上传用户自行承担。
[complaint:内容投诉]
智造资料网打造智能制造3D图纸下载,在线视频,软件下载,在线问答综合平台 » Pro/E工程图教程-(15)缸底工程图(图文教程)

