在机械加工中,常常遇到矩形工件或者异形工件。对于矩形工件的加工如用四爪卡盘装卡,校调费时,定位精度低,要求车工技术等级高,如用V形体虎钳定位夹紧机构,则附具复杂,制造困难。对于异形工件,如设计专用的夹具,则工序多,时间长,效率低,成本高,制造和装配精度受到一定条件的限制,而且专用夹具欠缺通用性。
三爪卡盘作为机加工中最基础也最常见的夹具类型之一,在夹紧工件时其三爪是等量径向移动的,所以用三爪卡盘装夹工件,装夹部位一般为圆柱面或平面。但如果工件没有适合于卡爪装夹的形面,如何装夹呢?从装夹横截面为矩形的方料时的一种简单附具,到装夹不规则截面胚料时的专用夹具设计,再到改制三爪卡盘(软爪)加工异形面的实现过程,应用的场景从小至广,对应工件的加工工艺由易至难,以下都有相应的解决方案,供以不同需求的设计人员参考。
一、三爪卡盘装夹四边形工件
把钢铁材料的板材加工成圆棒,作拉伸、热模拟等试样,需要用车床把锯切好的四边形坯料加工成圆形试样,这时就会出现在车床三爪或四爪卡盘上装夹横截面为四边形坯料(图1)的问题。
图1 不规则四边形工件
1、三爪卡盘装夹横截面为矩形的四边形胚料
(1)在三爪卡盘的卡爪上套 3 个U型夹头(图2)装夹四方工件。
装夹方法如图3,先将夹套装到卡爪上,再放上工件,该夹具适用于某个具体横截面尺寸,也可以通过加垫片进行调节,能扩大其使用范围,使工装夹具能适用于一定尺寸范围内的矩形工件。
图2 U型夹头
(2)该工装夹具的工作原理
当要加工四方工件前将夹套 s 装在三爪卡盘的卡爪上,下面的卡爪装上 90°V 形夹套,上面左、右两卡爪装上与平头倾斜 15°的夹套( 即图中∠FOE =15°) ,用螺钉拧紧固定。由于加工的四方工件尺寸种类繁多,将引起工件偏心,该偏心可用垫片来修正。为保证四方工件的中心O与尾座顶尖同轴,需要保证工件中心O到三爪卡盘 3 个卡爪平斗的距离一样。
图3 三爪卡盘装夹四方工具结构图
(3)使用夹套的优点
对于坯料横截面为矩形时,可以根据方料的具体尺寸在 3 个卡爪与夹头之间加相应尺寸的垫片,该方法对于截面为矩形的方料装夹方便简洁,且装夹牢靠,能够适应四方料在三爪卡盘上的装夹。
2、三爪卡盘装夹横截面不规则的四边形胚料
对于大小不统一、横截面不规则实验试样毛坯料的车削加工,为了能保证在规定尺寸范围内把四边形坯料加工成圆形实验试样,可以考虑通过先对毛坯料两端定中心,再用两顶尖法装夹的方式来设计工装夹具。夹具主要有 5 个部分组成,定位元件及定位装置、夹紧装置,夹具体等(如图4)。
图4 装夹形状不规则工件夹具
(1)夹具的设计原理
通过螺栓2把四边形工件的一端固定在夹具的装夹区,装夹区的大小可以根据毛坯料的大小通过调节螺栓2来控制。工件一端通过装夹前的定位中心孔顶在三爪卡盘一端的死顶尖上,通过拨杆与卡爪的连接带动工件旋转。为了保证夹具和工件在旋转过程中不出现摆动现象,可以通过拨杆上的螺栓1把夹具的拨杆固定在卡爪上。
图5 不规则四边形工件在三爪卡盘上的工装结构
(2)该套夹具的优点
利用两顶尖法通过专用夹具在三爪卡盘上装夹横截面为不规则四边形工件如图5。通过在毛坯料尺寸有限的情况下需要把四边形工件车削成圆棒,为了保证该四边形工件的装夹中心与尾座活络顶尖同心且保证装夹牢固可靠、方便,在装夹前先在工件的两端面划线,找出端面中心并打好中心孔,然后利用特制夹具和两顶尖,采用一夹两顶的方法,以工件两中心孔所确定的直线来定位。该装夹方法快速简洁且安全可靠。
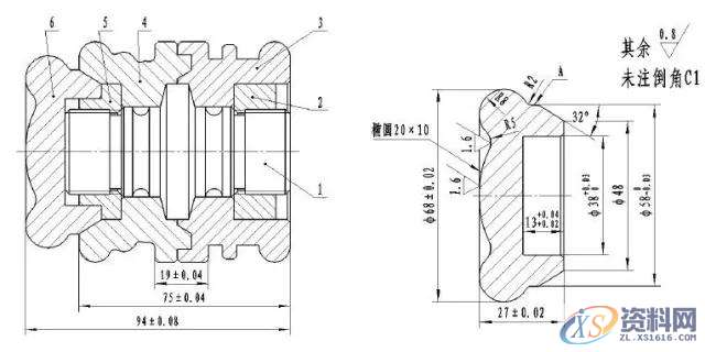
二、改制三爪卡盘装夹工件异形面
以图6所示异形工件为例,在工厂实际生产中,装夹此类零件除了使用专用夹具之外,没有别的好办法。使用专用夹具需要制造若干零件,经过多道工序加工,然后才能装配而成,耗时过长。且专用夹具的定位方式、制造和装配精度将直接影响工件定位精度。于是考虑改制三爪卡盘装夹工件异形面。
图6 待加工零件图
1.问题分析
从零件结构、装配要求来看,设计一种独特的方法:在三爪(软爪)内车出与工件周向、轴向曲线均吻合的异形面,以此装夹工件。
2.操作方法
(1)根据工件形状、大小和数控车床卡盘的液压夹紧行程确定三爪(软爪)在卡盘端面齿上的安装位置,预留足够的空间,使工件在液压卡盘松开后能装进改制后的三爪内。
(2)在三爪中车异形内轮廓,要解决三个问题:①车异形内轮廓与车圆柱形内轮廓不同;②车三爪异形内凹轮廓,要避免刀具干涉现象;③车三爪是断续切削,在余量较多的情况下,既要避免刀具崩刃现象,又要保证加工质量和效率。为此,采取如下措施:①编制加工程序车爪面异形内轮廓;②选择合适的刀具车爪面,避免刀具干涉现象;③选择合适的切削用量车爪面。
(3)改制好后用油石或锉刀将三爪轴向六处锐边修钝。
图7 用内孔尖刀在三爪内车圆弧形面
图8 用车好的三爪圆弧形面装夹工件
3.加工验证
(1)工序一(如图9),用普通三爪装夹毛坯(圆棒料φ80×30),将夹紧力调整为20bar,夹持外圆轴向长度7mm。为了保证工件表面圆滑过渡,避免出现“接刀”痕迹,外圆弧 R8、R2 和外圆柱φ58均在本工序用刀杆GHDL20-3 配外圆弧刀片 GIP3.00E-1.50 IC908(圆弧 R1.5)加工完成;端面圆弧和椭圆用刀杆HFHR-20M配端面圆弧刀片HFPR3015 IC908(圆弧 R1.5)加工完成。
图9 工序一加工现场
(2)工序二(如图10),用前面所述方法改制软爪,将夹紧力调整为 15bar,装夹工件 R8 圆弧面。由于改制的软爪能限制工件五个自由度,既能自动定心,又能自动定长(轴向定位),装夹后就能保证工件掉头同轴度和平行度,省去了用百分表找正工件的麻烦。因装夹刚性好,安全性能高,可采用理想的切削用量加工工件右端面、φ38 内孔和 32°外锥面,生产效率高,产品质量好。 加工完后,经检测验证,工件掉头同轴度误差在 0.015mm 以内,平行度误差在 0.012mm 以内,形状精度、尺寸精度和表面粗糙度都比较理想。
图10 工序二加工现场
4.改制三爪卡盘的拓展应用
将本方法应用范围扩大,根据工件的不同形状改制三爪(软爪),能装夹工件 V 形面、螺纹、椭圆、抛物线、双曲线、渐开线、正(余)弦(切)曲线等各种复杂异形面。
图11 含倾斜正弦曲线和锥面的难装夹零件
如图11所示零件,一端为倾斜正弦曲线外形和φ18 内孔,另端为 40°外锥和 R15 端面圆弧,若按常规,无论先加工哪一端,掉头装夹都比较困难。而采用本办法,可先加工倾斜正弦曲线和φ18 内孔,然后通过自动编程在三爪内车出与其相吻合的倾斜正弦曲线形面,以此装夹工件完成另一端加工(见图12、13、14)。
图12 用内孔尖刀在三爪内车倾斜正弦曲线形面
图13 用车好的三爪倾斜正弦曲线形面装夹工件
图14 装夹倾斜正弦曲线形面加工另一端
加工完后,经检验,工件同轴度误差在 0.015mm 以内,平行度误差在 0.01mm 以内,其它各项精度指标均达到了要求。
5. 改制三爪卡盘设计总结
实践证明,通过技术创改制三爪卡盘进行加工,取得了显著成果:
(一)普通三爪只能装夹圆柱面或平面,只能限制工件四个自由度。而按本方法改制软爪能装夹各种异形面,适用范围广,能限制工件五个自由度,既能自动定心,又能自动定长,定位精度高,装夹刚性好,加工工件同轴度和平行度均能达到 6—7 级。
(二)普通三爪掉头装夹时为了保证位置精度,一般要用百分表找正工件。而改制的软爪无须找正工件,装夹方便、快捷、牢靠,减少了辅助时间,且因装夹刚性和安全性好,可采用较大的切削用量进行加工,提高了生产效率。
(三)制造专用夹具工序多,时间长,效率低,成本高,制造和装配精度受到一定条件的限制,而且专用夹具欠缺通用性。而改制软爪仅用一台数控车床就能实施,一般不超过 30 分钟就能完成。由于软爪在数控车床上安装好之后才改制,并直接应用于本机床装夹工件,这就消除了夹具装配误差,故其精度明显比专用夹具高。一副φ200mm 的软爪价格仅 140 元,可多次改制,可重复应用于不同产品。所以,改制软爪比制造专用夹具更加简便、快捷、精确和经济。
东莞潇洒职业培训学校开设课程有:数控编程培训、塑胶模具设计培训,冲压模具设计培训,精雕、ZBrush圆雕培训、Solidworks产品设计培训、pro/E产品设计培训、AutoformR7工艺分析培训,潇洒职业培训学校线下、线上网络学习方式,随到随学,上班学习两不误,欢迎免费试学!联系电话:13018639977
联系电话:13018639977(微信同号)QQ:2033825601
学习地址:东莞市横沥镇新城工业区兴业路121号-潇洒职业培训学校
1;所有标注为智造资料网zl.fbzzw.cn的内容均为本站所有,版权均属本站所有,若您需要引用、转载,必须注明来源及原文链接即可,如涉及大面积转载,请来信告知,获取《授权协议》。
2;本网站图片,文字之类版权申明,因为网站可以由注册用户自行上传图片或文字,本网站无法鉴别所上传图片或文字的知识版权,如果侵犯,请及时通知我们,本网站将在第一时间及时删除,相关侵权责任均由相应上传用户自行承担。
[complaint:内容投诉]
智造资料网打造智能制造3D图纸下载,在线视频,软件下载,在线问答综合平台 » 一种卡盘多种夹持一、三爪卡盘装夹四边形工件二、改制三爪卡盘装夹工件异形面

