细水口模设计(图文教程)

細水口模設計

    細水口模又稱三板式模,其主要特点是在取出制品的同時﹐將之與流道廢料分離﹐因此﹐其定模部分也必須進行分型。

一) 細水口模主要用來成型下列制品。

1.一模一腔要求側澆口進膠。如果采用大水口模則要麼加大模胚﹐造成浪費﹐要么唧咀嚴重偏心。

2.一模多腔点澆口進膠制品。

3.一模一腔多個点澆口進膠的制品﹐通常用於成型較大型的制品。

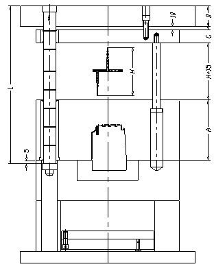
二) 拉杆長度確定。

    拉杆長度L=前模+水口長度+30﹐見圖﹐也即L=A+C+D+H+30。

细水口模设计(图文教程),细水口模设计,水口,尼龙,采用,制品,勾针,第1张

三)定距螺丝

    定距螺丝至少采用M5/8”杯头螺丝,同时,要装胶型圈,以利缓冲。

四)尼龙胶钉

    一般細水口模較常采用尼龙胶钉代替拉勾﹐控制分型的先后次序。尼龙胶钉結構簡單,易裝配﹐并且可通過調整螺絲的松緊來控制尼龙棒的膨脹﹐開模時﹐利用尼龙棒與孔的摩擦力使A﹑B板一起運動。但對於大型模具﹐這種結構不常用。其頂部常開ø5的孔排氣。

五)水口勾针

    水口勾针藏進水口推板內﹐以防阻碍熔融塑料的流動。其大小一般為ø1/4”,其中心与竖直分流道中心重合,如圖所示﹕

细水口模设计(图文教程),细水口模设计,水口,尼龙,采用,制品,勾针,第2张

六)唧咀

    所有細水口模一般采用標准唧咀,超过4545以上的模胚,采用自制唧嘴。

    当面板較厚時﹐在保証唧咀托底與面板底之間10MM至少5MM距離的情況下,將唧咀沉入面板﹐見圖;

细水口模设计(图文教程),细水口模设计,水口,尼龙,采用,制品,勾针,第3张

免责声明:
1;所有标注为智造资料网zl.fbzzw.cn的内容均为本站所有,版权均属本站所有,若您需要引用、转载,必须注明来源及原文链接即可,如涉及大面积转载,请来信告知,获取《授权协议》。
2;本网站图片,文字之类版权申明,因为网站可以由注册用户自行上传图片或文字,本网站无法鉴别所上传图片或文字的知识版权,如果侵犯,请及时通知我们,本网站将在第一时间及时删除,相关侵权责任均由相应上传用户自行承担。
[complaint:内容投诉]
智造资料网打造智能制造3D图纸下载,在线视频,软件下载,在线问答综合平台 » 细水口模设计(图文教程)