应 用 要 点 | 应 用 示 例 | 说 明 |
1)最大实体要求是当被测要素或基准要素偏离最大实体状态时,形状公差或位置公差可获得补偿值的一种相关要求。被测要素可以与基准要素同时采用最大实体要求,此时形状公差或位置公差可得到来自两方面的补偿值 2)采用最大实体要求时,必须了解以下几点:
①所给出的形状或位置公差值,是在被测要素处于最大实体状态,或基准要素处于最大实体状态的前提下给定的,所以它的符号 ②被测要素的最大实体实际状态是受由最大实体尺寸和形位公差值综合形成的最大实体实效边界控制的。当被测要素处于该实效状态时,装配间隙为最小。被测要素的实际尺寸偏离其最大实体尺寸时,可使形状或位置公差值超过所允许的值,但必须位于该实效边界内。在一般情况下,被测要素处于最小实体状态时,形位公差所得到的补偿量为最大 ③当基准要素采用最大实体要求时,由基准要素本身的要求而定。如采用包容要求,则基准要素受其最大实体边界的控制,当实际尺寸偏离最大实体尺寸时,可使被测要素得到补偿量。如不采用包容要求,则其边界除考虑基准要素的最大实体尺寸外,还应考虑未注形位公差的影响,此时,基准要素受由其最大实体尺寸和未注形位公差值综合形成的最大实体实效边界控制,当实际尺寸偏离最大实体实效尺寸时就可使被测要素得到补偿值 3)需要特别注意的是: ①基准要素是以它的体外作用尺寸而不是实际尺寸对控制边界的偏离来考虑其偏离量的 ②如被测要素是成组要素,则从基准要素作用尺寸对控制边界偏离所得到的补偿量只能补偿给成组要素即几何图框,而不是补偿给每一个被测要素 ③基准采用最大实体要求时,其偏离量并不一定100%地补偿给被测要素。受零件结构的影响,有时只能部分补偿给被测要素
4)当被测要素的形位误差小于给定的形位公差,又允许其实际尺寸超出最大实体尺寸时,可将可逆要求应用于最大实体要求。此时应同时在其形位公差框格中最大实体要求的形位公差值后标注符号“ 5)最大实体要求主要用于保证装配的部位,应在成批生产的零件上使用,以便于用量规检验。最大实体要求必需用于中心要素,既可用于被测要素,也可用于基准要素,并可同时采用。当采用三基面体系时,其中的中心要素可采用最大实体要求。最大实体要求主要用于位置公差,常见用于同轴度、对称度、位置度等。对于形状公差只有轴线直线度才能采用。加拿大、美国等国也用于素线直线度、圆柱度等,这些会造成理解上的不一致,ISO及我国均不采用 |
| 图a表示轴的轴线直线度公差采用最大实体要求。当被测要素处于最大实体状态时,其轴线直线度公差为φ0.1 mm,如图b所示。图c给出了表达上述关系的动态公差带图 该轴应满足下列要求: 1)实际尺寸为φ19.7~φ20 mm 2)实际轮廓不超出最大实体实效边界,即其体外作用尺寸不大于最大实体实效尺寸 dMV=dM+t =φ20.1 mm 当该轴处于最小实体状态时,其轴线直线度误差允许达到最大值,即等于图样给出的直线度公差值(φ0.1 mm)与轴的尺寸公差(0.3mm)之和φ0.4 mm
图d表示孔的轴线对A基准的垂直度公差采用最大实体要求。当被测要素处于最大实体状态时,其轴线对A基准的垂直度公差为φ0.08 mm,如图e所示。图f给出了表达上述关系的动态公差带图 该孔应满足下列要求: 1)实际尺寸为φ50~φ50.13 mm 2)实际轮廓不超出关联最大实体实效边界,即其关联体外作用尺寸不小于关联最大实体实效尺寸 DMV=DM-t =49.92mm 当该孔处于最小实体状态时,其轴线对A基准的垂直度误差允许达到最大值,即等于图样给出的垂直度公差(φ0.08 mm)与孔的尺寸公差(0.13 mm)之和φ0.21 mm
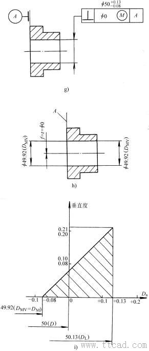
图g表示孔的轴线对A基准的垂直度公差采用最大实体要求的零形位公差。当该孔处于最大实体状态时,其轴线对A基准的垂直度误差值为0,如图g所示。当该孔处于最小实体状态时,其轴线对A基准的垂直度误差允许达到最大值,即孔的尺寸公差值φ0.21 mm。图i表示上述关系的动态公差带图 该孔应满足下列要求: 1)实际尺寸不大于φ50.13 mm 2)实际轮廓不超出关联最大实体边界,即其关联体外作用尺寸不小于最大实体尺寸DM=φ49.92 mm |
1;所有标注为智造资料网zl.fbzzw.cn的内容均为本站所有,版权均属本站所有,若您需要引用、转载,必须注明来源及原文链接即可,如涉及大面积转载,请来信告知,获取《授权协议》。
2;本网站图片,文字之类版权申明,因为网站可以由注册用户自行上传图片或文字,本网站无法鉴别所上传图片或文字的知识版权,如果侵犯,请及时通知我们,本网站将在第一时间及时删除,相关侵权责任均由相应上传用户自行承担。
[complaint:内容投诉]
智造资料网打造智能制造3D图纸下载,在线视频,软件下载,在线问答综合平台 » 最大实体要求的应用(图文教程)


