模具设计操作指南-模温控制的要求

模温控制
    模具温度对胶件的成型质量、成型效率有着较大的影响。在温度较高的模具里,熔融胶料的流动性较好,有利于胶料充填型腔,获取高质量的胶件外观表面,但会使胶料固化时间变长,顶出时易变形,对结晶性胶料而言,更有利于结晶过程进行,避免存放及使用中胶件尺寸发生变化;在温度较低的模具里,熔融胶料难于充满型腔,导致内应力增加,表面无光泽,产生银纹、熔接痕等缺陷。
不同的胶料具有不同的加工工艺性,并且各种胶件的表面要求和结构不同,为了在最有效的时间内生产出符合质量要求的胶件,这就要求模具保持一定的温度,模温越稳定,生产出的胶件在尺寸形状、胶件外观质量等方面的要求就越一致。因此,除了模具制造方面的因素外,模温是控制胶件质量高低的重要因素,模具设计时应充分考虑模具温度的控制方法。
10.1 模具温度控制的原则和方式
10.1.1 模具温度控制的原则
    为了保证在最有效的时间内生产出高外观质量要求、尺寸稳定、变形小的胶件,设计时应清楚了解模具温度控制的基本原则。
(1)不同胶料要求不同的模具温度。参见10.1.3节
(2)不同表面质量、不同结构的模具要求不同的模具温度,这就要求在设计温控系统时具有针对性。
(3)前模的温度高于后模的温度,一般情况下温度差为20~30º左右。
(4)有火花纹要求的前模温度比一般光面要求的前模温度高。当前模须通热水或热油时,一般温度差为40º左右。
(5)当实际的模具温度不能达到要求模温时,应对模具进行升温。因此模具设计时,应充分考虑胶料带入模具的热量能否满足模温要求。
(6)由胶料带入模具的热量除通过热辐射、热传导的方式消耗外,绝大部分的热量需由循环的传热介质带出模外。铍铜等易传热件中的热量也不例外。
(7)模温应均衡,不能有局部过热、过冷。

N95口罩机现货预订电话:13018639977

CNC数控编程培训、塑胶模具设计培训,冲压模具设计培训,精雕、ZBrush圆雕培训、Solidworks产品设计培训、pro/E产品设计培训,潇洒职业培训学校线下、线上网络学习方式,随到随学,上班学习两不误,欢迎免费试学!

学习联系李老师电话:13018639977(微信同号)QQ:2033825601

学习地址:东莞市横沥镇新城工业区兴业路121号-潇洒职业培训学校

10.1.2 模具温度的控制方式
    模具温度一般通过调节传热介质的温度,增设隔热板、加热棒的方法来控制。传热介质一般采用水、油等,它的通道常被称作冷却水道。
降低模温,一般采用前模通“机水”(20ºC左右)、后模通“冻水”(4ºC左右)来实现。当传热介质的通道即冷却水道无法通过某些部位时,应采用传热效率较高的材料(如铍铜等,模具材料的传热系数详见《塑料模具技术手册》第219页),将热量传递到传热介质中去,如图10.1.1,或者采用“热管”进行局部冷却。
    升高模温,一般采用在冷却水道中通入热水、热油(热水机加热)来实现。当模温要求较高时,为防止热传导对热量的损失,模具面板上应增加隔热板。
热流道模具中,流道板温度要求较高,须由加热棒加热,为避免流道板的热量传至前模,导致前模冷却困难,设计时应尽量减少其与前模的接触面。
10.1.3 常用胶料的注射温度与模具温度
    下表为胶件表面质量无特殊要求(即一般光面)时常用的胶料注射温度、模具温度,模具温度指前模型腔的温度。
胶料名称
ABS
AS
HIPS
PC
PE
PP
注射温度(ºC)
210~230
210~230
200~210
280~310
200~210
200~210
模具温度(ºC)
60~80
50~70
40~70
90~110
35~65
40~80
胶料名称
PVC
POM
PMMA
PA6
PS
TPU
注射温度(ºC)
160~180
180~200
190~230
200~210
200~210
210~220
模具温度(ºC)
30~40
80~100
40~60
40~80
40~70
50~70
10.2 冷却系统设计
10.2.1 冷却系统设计原则
(1)冷却水道的孔壁至型腔表面的距离应尽可能相等,一般取15~25mm,如图10.2.1所示。
(2)冷却水道数量尽可能多,而且要便于加工。一般水道直径选用Æ6.0,Æ8.0,Æ10.0,两平行水道间距取40~60mm,如图10.2.1所示。
(3)所有成型零部件均要求通冷却水道,除非无位置。热量聚集的部位强化冷却,如电池兜、喇叭位、厚胶位、浇口处等。A板,B板,水口板,浇口部分则视情况定。
模具设计操作指南-模温控制的要求,模具设计,要求,控制,第1张
(4)降低入水口与出水口的温差。入水,出水温差会影响模具冷却的均匀性,故设计时应标明入水,出水方向,模具制作时要求在模坯上标明。.运水流程不应过长,防止造成出入水温差过大。
(5)尽量减少冷却水道中“死水”(不参与流动的介质)的存在。
(6)冷却水道应避免设在可预见的胶件熔接痕处。
(7)保证冷却水道的最小边距(即水孔周边的最小钢位厚度),要求当水道长度小于150mm时,边间距大于3mm;当水道长度大于150mm时,边间距大于5mm。
(8)冷却水道连接时要由“O”型胶密封,密封应可靠无漏水。密封结构参见10.2.2。
(9)对冷却水道布置有困难的部位应采取其它冷却方式,如铍铜、热管等
(10)合理确定冷却水接头位置,避免影响模具安装、固定。
10.2.2 “O”型密封圈的密封结构
    常用“O”型密封圈结构如图10.2.3所示。可参见第十五章15.5节。
模具设计操作指南-模温控制的要求,模具设计,要求,控制,第2张
    常用密封结构如图10.2.4所示。常用装配技术要求参见列表:
模具设计操作指南-模温控制的要求,模具设计,要求,控制,第3张

单位:mm

密封圈规格
装配技术要求
ØD
Ød
ØD1
H
W
13.0
2.5
8.0
1.8
3.2
16.0
11.0
19.0
14.0
16.0
3.5
9.0
2.7
4.7
19.0
12.0
25.0
18.0
10.2.3 冷却实例
(1)浅模腔冷却。前模如图10.2.5所示,后模如图10.2.6所示。
模具设计操作指南-模温控制的要求,模具设计,要求,控制,第4张
(2)深模腔冷却。如图10.2.7所示。
模具设计操作指南-模温控制的要求,模具设计,要求,控制,第5张
(3)较小的高、长型芯冷却。图10.2.8采用斜向交叉冷却水道;10.2.9采用套管形式的冷却水道。
模具设计操作指南-模温控制的要求,模具设计,要求,控制,第6张
 (4)无法加工冷却水道的部位采用易导热材料传出热量。如图10.2.10所示
模具设计操作指南-模温控制的要求,模具设计,要求,控制,第7张
 (5)哈夫模冷却。如图10.2.11所示。哈夫块上开设冷却水道,模坯上开设出水、入水管道的避空槽。
模具设计操作指南-模温控制的要求,模具设计,要求,控制,第8张
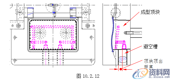
(6)成型顶块冷却。如图10.2.12所示。在顶块的出水、入水管道的接口处开设避空槽,避空槽的大小应满足引水管在顶块顶出时的运动空间。
模具设计操作指南-模温控制的要求,模具设计,要求,控制,第9张

 

免责声明:
1;所有标注为智造资料网zl.fbzzw.cn的内容均为本站所有,版权均属本站所有,若您需要引用、转载,必须注明来源及原文链接即可,如涉及大面积转载,请来信告知,获取《授权协议》。
2;本网站图片,文字之类版权申明,因为网站可以由注册用户自行上传图片或文字,本网站无法鉴别所上传图片或文字的知识版权,如果侵犯,请及时通知我们,本网站将在第一时间及时删除,相关侵权责任均由相应上传用户自行承担。
[complaint:内容投诉]
智造资料网打造智能制造3D图纸下载,在线视频,软件下载,在线问答综合平台 » 模具设计操作指南-模温控制的要求