压铸件设计规范(图文教程)

一、 壁厚

压铸件的壁厚对铸件质量有很大的影响。以铝合金为例,薄壁比厚壁具有更高的强度和良好的致密性。因此,在保证铸件有足够的强度和刚性的条件下,应尽可能减少其壁厚,并保持壁厚均匀一致。

铸件壁太薄时,使金属熔接不好,影响铸件的强度,同时给成型带来困难;壁厚过大或严重不均匀则易产生缩瘪及裂纹。随着壁厚的增加,铸件内部气孔、缩松等缺陷也随之增多,同样降低铸件的强度。

压铸件的壁厚一般以2.5~4mm为宜,壁厚超过6mm的零件不宜采用压铸。推荐采用的最小壁厚和正常壁厚见表1。

表1 压铸件的最小壁厚和正常壁厚

压铸件设计规范(图文教程),压铸件设计规范,斜度,圆角,脱模,最小,第1张
壁厚处的面积a×b(cm2) 锌合金 铝合金 镁合金 铜合金
壁 厚 h (mm)
最小 正常 最小 正常 最小 正常 最小 正常
≤25 0.5 1.5 0.8 2.0 0.8 2.0 0.8 1.5
>25~100 1.0 1.8 1.2 2.5 1.2 2.5 1.5 2.0
>100~500 1.5 2.2 1.8 3.0 1.8 3.0 2.0 2.5
>500 2.0 2.5 2.5 4.0 2.5 4.0 2.5 3.0

现使用的绝大多数为铝压铸件,其壁厚一般控制在2.0~2.5mm。

二、铸造圆角脱模斜度

1)铸造圆角

压铸件各部分相交应有圆角(分型面处除外),使金属填充时流动平稳,气体容易排出,并可避免因锐角而产生裂纹。对于需要进行电镀和涂饰的压铸件,圆角可以均匀镀层,防止尖角处涂料堆积。

压铸件的圆角半径R一般不宜小于1mm,最小圆角半径为0.5 mm,见表2。铸造圆角半径的计算见表3。

表2 压铸件的最小圆角半径(mm)

压铸合金 圆角半径R 压铸合金 圆角半径R
锌合金 0.5 铝、镁合金 1.0
铝锡合金 0.5 铜合金 1.5

现采用的圆角一般取R1.5。

表3 铸造圆角半径的计算(mm)

相连接两壁的厚度 图例 圆角半径
相等壁厚压铸件设计规范(图文教程),压铸件设计规范,斜度,圆角,脱模,最小,第2张 rmin=Kh
rmax=Kh
R=r+h
不等壁厚压铸件设计规范(图文教程),压铸件设计规范,斜度,圆角,脱模,最小,第3张 r≥(h+h1)/3
R= r+(h+h1)/2

说明:①、对锌合金铸件,K=1/4;对铝、镁、合金

铸件, K=1/2。

②、计算后的最小圆角应符合表2的要求。

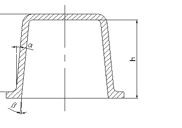
2) 脱模斜度

设计压铸件时,就应在结构上留有结构斜度,无结构斜度时,在需要之处,必须有脱模的工艺斜度。斜度的方向,必须与铸件的脱模方向一致。推荐的脱模斜度见表4。

表4 脱模斜度

压铸件设计规范(图文教程),压铸件设计规范,斜度,圆角,脱模,最小,第4张 合金 配合面的最小脱模斜度 非配合面的最小脱模斜度
外表面α 内表面β 外表面α 内表面β
锌合金 0°10′ 0°15′ 0°15′ 0°45′
铝、镁合金 0°15′ 0°30′ 0°30′
铜合金 0°30′ 0°45′ 1°30′

说明:①、由此斜度而引起的铸件尺寸偏差,不计入尺寸公差值内。

②、表中数值仅适用型腔深度或型芯高度≤50mm,表面粗糙度在Ra0.1,大端

与小端尺寸的单面差的最小值为0.03mm。当深度或高度>50mm,或表面

粗糙 度超过Ra0.1时,则脱模斜度可适当增加。

现采用的脱模斜度一般取1.5°。

三、加强筋

加强筋的设置可以增加零件的强度和刚性,同时改善了压铸的工艺性。

但须注意:

① 分布要均匀对称;

② 与铸件连接的根部要有圆角;

③ 避免多筋交叉;

④ 筋宽不应超过其相连的壁的厚度。当壁厚小于 1.5mm时,不宜采用加强筋;

⑤ 加强筋的脱模斜度应大于铸件内腔所允许的铸造斜度。

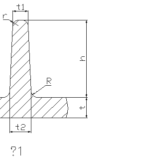
一般采用的加强筋的尺寸按图1选取:

t1=2 t /3~t;t2=3 t /4~t;

R≥t/2~t;

h≤5t; r≤0.5mm

(t—压铸件壁厚,最大不超过6~8mm)。

压铸件设计规范(图文教程),压铸件设计规范,斜度,圆角,脱模,最小,第5张

四、铸孔和孔到边缘的最小距离

1)铸孔

压铸件的孔径和孔深,对要求不高的孔可以直接压出,按表5。

表5 最小孔径和最大孔深


合金 径
类别
最小孔径 d(mm) 最大孔深(mm) 孔的最
小斜度
一般的 技术上
可能的
盲孔 通孔
d>5 d<5 d>5 d<5
锌合金 1.5 0.8 6d 4d 12d 8d 0~0.3%
铝合金 2.5 2.0 4d 3d 8d 6d 0.5 % ~1%
镁合金 2.0 1.5 5d 4d 10d 8d 0~0.3%
铜合金 4.0 2.5 3d 2d 5d 3d 2 % ~4%

说明:①、表内深度系指固定型芯而言,,对于活动的单个型芯其深度还可以适当增加。

②、对于较大的孔径,精度要求不高时,孔的深度亦可超出上述范围。

对于压铸件自攻螺钉用的底孔,推荐采用的底孔直径见表6。

表6 自攻螺钉用底孔直径(mm)

压铸件设计规范(图文教程),压铸件设计规范,斜度,圆角,脱模,最小,第6张 螺纹规格d M2.5 M3 M3.5 M4 M5 M6 M8
d2 2.30~ 2.40 2.75~ 2.85 3.18~ 3.30 3.63~ 3.75 4.70~ 4.85 5.58~ 5.70 7.45~ 7.60
d3 2.20~ 2.30 2.60~ 2.70 3.08~ 3.20 3.48~ 3.60 4.38~ 4.50 5.38~ 5.50 7.15~ 7.30
d4 ≥4.2 ≥5.0 ≥5.8 ≥6.7 ≥8.3 ≥10 ≥13.3
旋入深度t t≥1.5d

现较为常用的自攻螺钉规格为M4与M5,其采用的底孔直径如下表:

  d2 d3 t
M4 3.84 0
-0.1
3.59 +0.1
0
10
M5 4.84 0
-0.1
4.54 +0.1
0
20

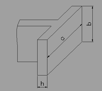
2) 铸孔到边缘的最小距离

为了保证铸件有良好的成型

条件,铸孔到铸件边缘应保

持一定的壁厚,见图2。

b≥(1/4~1/3)t

当t<4.5时,b≥1.5mm

压铸件设计规范(图文教程),压铸件设计规范,斜度,圆角,脱模,最小,第7张

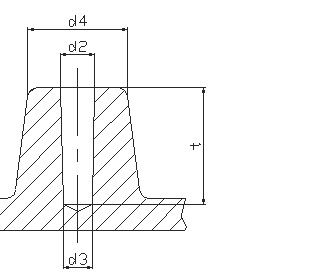
五、压铸件上的长方形孔和槽

压铸件上的长方形孔和槽的设计推荐按表7 采用。

表7 长方形孔和槽(mm)

压铸件设计规范(图文教程),压铸件设计规范,斜度,圆角,脱模,最小,第8张
合金类别 铅锡合金 锌合金 铝合金 镁合金 铜合金
最小宽度b 0.8 0.8 1.2 1.0 1.5
最大深度H ≈10 ≈12 ≈10 ≈12 ≈10
厚度h ≈10 ≈12 ≈10 ≈12 ≈8

说明:宽度b在具有铸造斜度时,表内值为小端部位值。

六、压铸件内的嵌件

压铸件内采用嵌件的目的:

① 改善和提高铸件上局部的工艺性能,如强度、硬度、耐磨性等;

② 铸件的某些部分过于复杂,如孔深、内侧凹等无法脱出型芯而采用嵌件;

③ 可以将几个部件铸成一体。

设计带嵌件的压铸件的注意事项:

① 嵌件与压铸件的连接必须牢固,要求在嵌件上开槽、凸  起、滚花等;

② 嵌件必须避免有尖角,以利安放并防止铸件应力集中;

③ 必须考虑嵌件在模具上定位的稳固性,满足模具内配合要求;

④ 外包嵌件的金属层不应小于1.5~2mm;

⑤ 铸件上的嵌件数量不宜太多;

⑥ 铸件和嵌件之间如有严重的电化腐蚀作用,则嵌件表面需要镀层保护;

⑦ 有嵌件的铸件应避免热处理,以免因两种金属的相变而引起体积变化,使嵌件松动。

七、压铸件的加工余量

压铸件由于尺寸精度或形位公差达不到产品图纸要求时,应首先考虑采用精整加工方法,如校正、拉光、挤压、整形等。必须采用机加工时应考虑选用较小的加工余量,并尽量以不受分型面及活动成型影响的表面为毛坯基准面。

推荐采用的机加工余量及其偏差值见表8。铰孔余量见表9。

表8 推荐机加工余量及其偏差(mm)

基本尺寸 ≤100 >100~250 > 250 ~400 > 400 ~630 > 630 ~1000
每面余量 0.5 +0.4
-0.1
0.75 +0.5
-0.2
1.0 +0.5
-0.3
1.5 +0.6
-0.4
2.0 +1
-0.4

表9 推荐铰孔加工余量(mm)

公称孔径D ≤6 >6~10 > 10 ~18 >18 ~30 >30 ~50 >50 ~60
铰孔余量 0.05 0.1 0.15 0.2 0.25 0.3

现采用的机加工余量一般取0.3~0.5mm。

免责声明:
1;所有标注为智造资料网zl.fbzzw.cn的内容均为本站所有,版权均属本站所有,若您需要引用、转载,必须注明来源及原文链接即可,如涉及大面积转载,请来信告知,获取《授权协议》。
2;本网站图片,文字之类版权申明,因为网站可以由注册用户自行上传图片或文字,本网站无法鉴别所上传图片或文字的知识版权,如果侵犯,请及时通知我们,本网站将在第一时间及时删除,相关侵权责任均由相应上传用户自行承担。
[complaint:内容投诉]
智造资料网打造智能制造3D图纸下载,在线视频,软件下载,在线问答综合平台 » 压铸件设计规范(图文教程)