钓勾的绘图步骤(图文教程)

    吊钩的尺寸如下:

钓勾的绘图步骤(图文教程),钓勾的绘图步骤,绘图,步骤,教程,第1张

    作图步骤一:根据所给的定位尺寸画出定位中心线

钓勾的绘图步骤(图文教程),钓勾的绘图步骤,绘图,步骤,教程,第2张

    作图步骤二:根据所给的定形尺寸画出已知线段

钓勾的绘图步骤(图文教程),钓勾的绘图步骤,绘图,步骤,教程,第3张

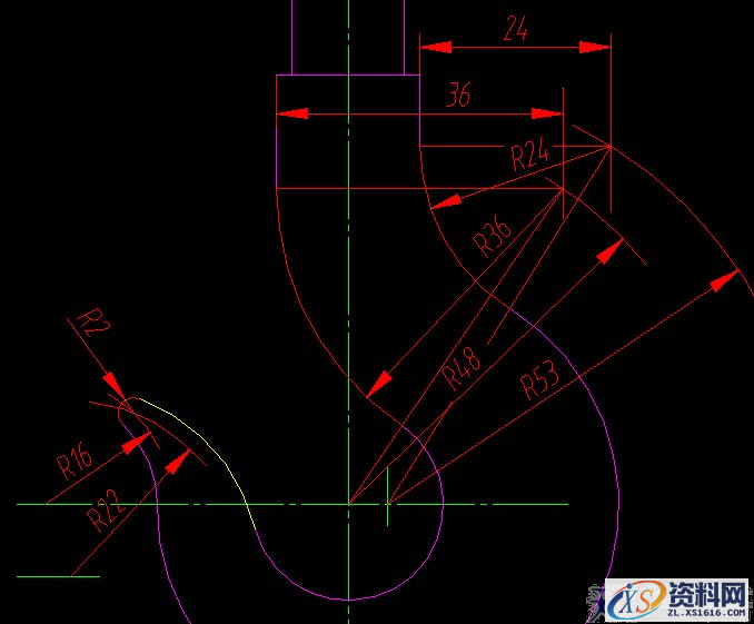
    作图步骤三:根据所给的定形尺寸画出中间线段(做一条辅助线就能找到圆心,图中黄色)——要准确找到连接弧的圆心及连接点(切点)

钓勾的绘图步骤(图文教程),钓勾的绘图步骤,绘图,步骤,教程,第4张

    作图步骤四:根据所给的定形尺寸画出连接线段(做两条辅助线才能找到圆心)——要准确找到连接弧的圆心及连接点(切点)

钓勾的绘图步骤(图文教程),钓勾的绘图步骤,绘图,步骤,教程,第5张

    步骤五:检查图形的正确性,如有错误——改正之;擦去多余作图线,清洁图面;
按规定线型加深:1.先细后粗,2.先曲后直——半径由小到大再到直线

免责声明:
1;所有标注为智造资料网zl.fbzzw.cn的内容均为本站所有,版权均属本站所有,若您需要引用、转载,必须注明来源及原文链接即可,如涉及大面积转载,请来信告知,获取《授权协议》。
2;本网站图片,文字之类版权申明,因为网站可以由注册用户自行上传图片或文字,本网站无法鉴别所上传图片或文字的知识版权,如果侵犯,请及时通知我们,本网站将在第一时间及时删除,相关侵权责任均由相应上传用户自行承担。
[complaint:内容投诉]
智造资料网打造智能制造3D图纸下载,在线视频,软件下载,在线问答综合平台 » 钓勾的绘图步骤(图文教程)