1:直顶设计及直顶座标准1.1 直顶的设计1).在有较深的骨位时可采用直顶顶出,骨位应出在直顶上。2).直顶尺寸不宜太小,一般大于10x12。3).直顶表面应氮化,底部应有直顶座,直顶座选择标准件。4).类似(a图)的深腔型制品,顶出受力大,也可以设计成直顶顶出。注意顶出平衡。5).直顶同斜顶一样要防止利角.斜顶顶出请参照第4章"斜顶设计原则"6).直顶的排列要考虑产品是否容易取出。


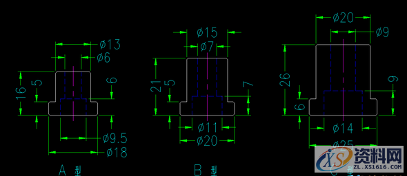
1.2. 直顶座标准+ _71). 直顶座材料用黄牌(氮化)。2). 直顶座为自制标准件。3). 未注倒角为C0.5.

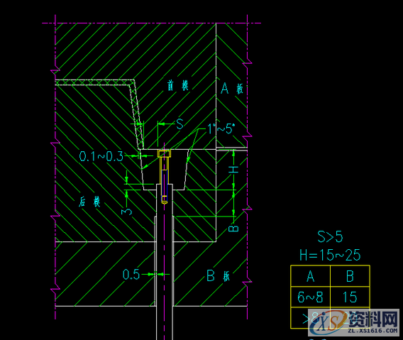
2顶 块2.1:顶块的设计原则与注意事项1). 顶针必须在胶位边,而又不能或不必用推板顶出时,则用顶块顶出。2). 顶块周边必须做1~5°斜度。顶块用718C材料,氮硬。3). 顶块离胶位内边S1必须有0.1~0.3mm以上距离,以避免顶出时顶块与内模磨擦。设计方法如下图所示。
4). 顶块底部顶针必须做管位,具体数字如附表。5). 顶块只用一根顶针顶出时,顶针须做防转。

3:推板1). 在制品不适合做顶针或顶块顶出时,可以采用推板顶出。2). 推板周边必须做1~5°斜度。顶块用718C材料,氮硬。0 k( b( L( P2 K& `0 g( g$ R3). 推板离胶位内边S1必须有0.1~0.3mm以上距离,以避免顶出时顶块与内模磨擦。设计方法如下图所示。
4). 推板底部顶针必须做管位。
5). 推板只用一根顶针顶出时,顶针须做防转。

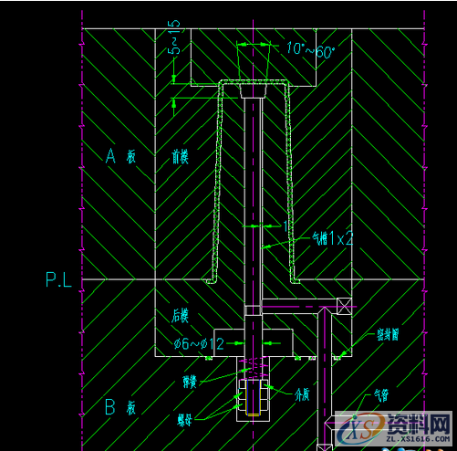
4:气顶0 1).对于一些深腔型制品,成形后易形成真空,不利于开模或顶出时,可以在前模或后模设计气顶来解决问题。前模气顶与后模气顶的设计方法相同。2). 气顶回位用轻负荷的黄弹簧或紫弹簧(圆弹簧)。

N95口罩耳带机、N95切片加内置鼻梁一体机、N95口罩机整套现货,预订电话:13018639977
CNC数控编程培训、塑胶模具设计培训,冲压模具设计培训,精雕、ZBrush圆雕培训、Solidworks产品设计培训、pro/E产品设计培训,潇洒职业培训学校线下、线上网络学习方式,随到随学,上班学习两不误,欢迎免费试学!
联系电话:13018639977(微信同号)QQ:2033825601
学习地址:东莞市横沥镇新城工业区兴业路121号-潇洒职业培训学校
1;所有标注为智造资料网zl.fbzzw.cn的内容均为本站所有,版权均属本站所有,若您需要引用、转载,必须注明来源及原文链接即可,如涉及大面积转载,请来信告知,获取《授权协议》。
2;本网站图片,文字之类版权申明,因为网站可以由注册用户自行上传图片或文字,本网站无法鉴别所上传图片或文字的知识版权,如果侵犯,请及时通知我们,本网站将在第一时间及时删除,相关侵权责任均由相应上传用户自行承担。
[complaint:内容投诉]
智造资料网打造智能制造3D图纸下载,在线视频,软件下载,在线问答综合平台 » 塑胶模具设计顶出系统-顶块推块直顶气顶的设计原则

