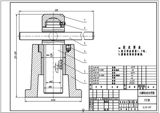
千斤顶工作原理:
千斤顶是利用螺旋传动来顶举重物的一种起重或顶压工具,常用于汽车修理及机械安装中。工作时,重物压于顶垫之上,将绞杠穿入螺旋杆上部的孔中,旋动绞杠,螺旋杆在螺套中靠螺纹做上、下移动,从而顶起或放下重物。螺套镶在底座里,用螺钉定位,磨损后便于更换。顶垫套在螺旋杆顶部,其球面形成传递承重之配合面,由螺钉锁定,使顶垫相对螺旋杆旋转而不脱落。

机械制图分析:
千斤顶的装配主干线是螺旋杆,为了清楚的表达千斤顶的内外部装配结构,应选如下图所示全剖视的工作位置为主视图。在主视图上,千斤顶的7个零件所处的位置及装配关系、各零件的主要形状均已表达清楚。
免责声明:
1;所有标注为智造资料网zl.fbzzw.cn的内容均为本站所有,版权均属本站所有,若您需要引用、转载,必须注明来源及原文链接即可,如涉及大面积转载,请来信告知,获取《授权协议》。
2;本网站图片,文字之类版权申明,因为网站可以由注册用户自行上传图片或文字,本网站无法鉴别所上传图片或文字的知识版权,如果侵犯,请及时通知我们,本网站将在第一时间及时删除,相关侵权责任均由相应上传用户自行承担。
[complaint:内容投诉]
智造资料网打造智能制造3D图纸下载,在线视频,软件下载,在线问答综合平台 » 典型零部件机械制图实例-千斤顶(图文教程)
1;所有标注为智造资料网zl.fbzzw.cn的内容均为本站所有,版权均属本站所有,若您需要引用、转载,必须注明来源及原文链接即可,如涉及大面积转载,请来信告知,获取《授权协议》。
2;本网站图片,文字之类版权申明,因为网站可以由注册用户自行上传图片或文字,本网站无法鉴别所上传图片或文字的知识版权,如果侵犯,请及时通知我们,本网站将在第一时间及时删除,相关侵权责任均由相应上传用户自行承担。
[complaint:内容投诉]
智造资料网打造智能制造3D图纸下载,在线视频,软件下载,在线问答综合平台 » 典型零部件机械制图实例-千斤顶(图文教程)

