数据传输接头后壳注塑模设计要点

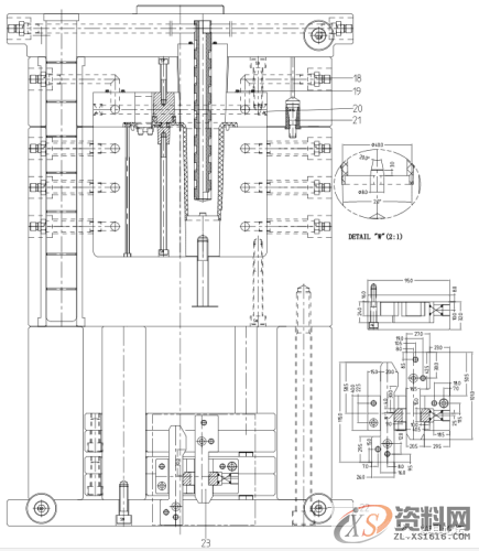
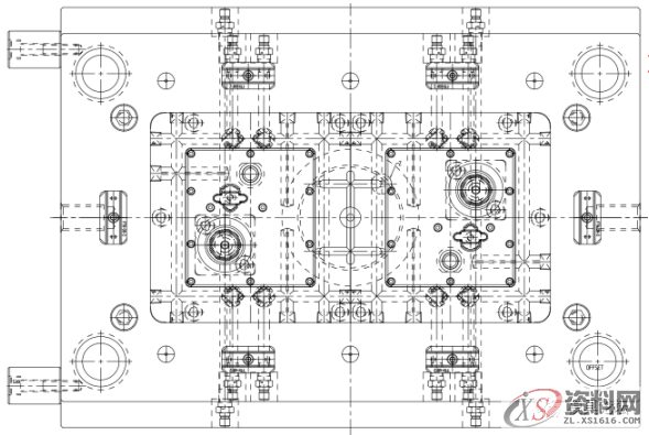
数据传输接头后壳产品图见图1,产品最大外形尺寸为131.50mm x122.50 mm x112.29 mm,塑件平均胶位厚度3.0 mm,塑件材料为PS,缩水率为1.0045,塑件质量为96克。塑件技术要求为不得存在披峰、注塑不满、流纹、气孔、翘曲变形、银纹、冷料、喷射纹等各种缺陷。

数据传输接头后壳注塑模设计要点,要点,设计,第1张

数据传输接头后壳注塑模设计要点,要点,设计,第2张

数据传输接头后壳注塑模设计要点,要点,设计,第3张

从模具图1可以看出,塑件为矩形扁平造型壳体,底部有一个锥形漏斗状下沉形状。模具设计的难点在于锥形漏斗状下沉形状的脱模。模具设计型腔排位为1出2. 模胚为GCI 3555 A80 B230 C200,简化细水口模具。浇注系统设计为侧浇口,从矩形的边缘2点进胶。前模镶件3固定在面板上,开模时,在分型面尼龙扣21作用下,面板与A板首先分开35mm, 分开距离由限位钉05限位。前模镶件3从塑件中首先脱离。
一般情况下,从模具中顶出塑件,无论是采用单一的或者多元件顶出机构,其顶出动作都是一次完成的。但是由于塑件的形状特殊或生产自动化的需要,若在一次顶出动作完成后,塑件仍然难于从模具型腔中取出或不能自动脱落时,就需要在增加一次顶出动作才能将塑件顶出模外。对于薄壁深腔或形状复杂的塑件,有时为了避免一次顶出塑件受力过大,也采用二次顶出,以分散顶出力,保证塑件质量。这类顶出机构称为二次顶出机构。二次顶出机构通常是部分或全部脱出元件先共同初始脱出塑件,然后一部分脱出元件停住而另一部分元件继续脱出塑件,或者一部分元件继续脱出塑件,而另外一部分元件则以更快的速度超前脱出塑件。
锥形漏斗状下沉形状设计在动模,深度达到112mm,圆锥形漏斗状下沉的圆周方向存在3条加强筋,在前模镶件3脱模后,对于动模仍然有很大的包紧力。为此,设计了二次顶出装置,在锥形漏斗下部设计了推块08,俗称大头顶。推块08用顶杆09固定在下层顶针板上。顶针11固定在上层顶针板上。上下两层顶针板利用扣机连接。
注塑机顶棍顶动上层顶针板,上层顶针板利用扣机带动下层顶针板一起顶出。推块08和顶针11一起将塑件顶出一段距离后,由于滑动块的斜面碰到底部拉钩的斜面,滑动块移动,上下层顶针板脱离。推块08停止顶出,顶针11将塑件从推块08上脱离。

数据传输接头后壳注塑模设计要点,要点,设计,第4张

扣机采用DF2钢材制作。DF2为锰—铬—钨合金钢,被广泛的使用,是高质量的冷作工具钢。淬火温度820℃,380℃左右回火,硬度48--52HRC。

数据传输接头后壳注塑模设计要点,要点,设计,第5张

数据传输接头后壳注塑模设计要点,要点,设计,第6张

数据传输接头后壳注塑模设计要点,要点,设计,第7张

1 数据传输接头后壳模具图

2D五金模具设计、3D汽车模具设计,冲压模具设计全能班、UG塑胶模具设计、Pore产品设计、北京精雕、Zbrush圆雕设计、Solidworks产品设计培训、UG/Mastercam/Powermill数控编程、三轴/四轴/五轴精雕浮雕模具设计、数控加工CNC电脑锣操机、精雕浮雕操机、Autoform软件、UG/VISI软件应用、PressCAD软件应用、AutoCAD等学历提升课程供君参观参考,找李老师预约提供免费试学。学习电话:13018636633(微信同号)QQ:1740467385
学习地址:东莞市横沥镇新城工业区兴业路121号-潇洒教育


免责声明:
1;所有标注为智造资料网zl.fbzzw.cn的内容均为本站所有,版权均属本站所有,若您需要引用、转载,必须注明来源及原文链接即可,如涉及大面积转载,请来信告知,获取《授权协议》。
2;本网站图片,文字之类版权申明,因为网站可以由注册用户自行上传图片或文字,本网站无法鉴别所上传图片或文字的知识版权,如果侵犯,请及时通知我们,本网站将在第一时间及时删除,相关侵权责任均由相应上传用户自行承担。
[complaint:内容投诉]
智造资料网打造智能制造3D图纸下载,在线视频,软件下载,在线问答综合平台 » 数据传输接头后壳注塑模设计要点