机械制造工程_7.2冶金连接(焊接)成形(图文教程)

第二节 冶金连接(焊接)成形

一、焊接的基本原理

(一)焊接的定义与特点

焊接是用加热或加压等工艺措施,使分离表面产生原子间的结合与扩散作用,从而形成不可拆卸接头的材料成形方法。焊接与其它连接方法的重要区别是通过原子之间的结合而实现连接。

焊接成形的特点如下:

1. 可将大而复杂的结构分解为

小而简单的坯料拼焊。如汽车车身生产过程(图7-7),先分别制造出车门、驾驶室、前围和侧围,再将各部件组装拼焊,简化了工艺,降低了成本。

机械制造工程_7.2冶金连接(焊接)成形(图文教程),机械制造工程_7.2冶金连接(焊接)成形,成形,第1张

图7-7 汽车车身的焊装生产过程

2. 可实现不同材料间的连接成形,优化设计,节省贵重材料。如汽门杆部为45钢,头部为合金钢,如图7-8所示。

机械制造工程_7.2冶金连接(焊接)成形(图文教程),机械制造工程_7.2冶金连接(焊接)成形,成形,第2张

图7-8 汽门杆的复合结构

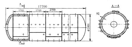
3. 可实现特殊结构的生产。例如,功率为126×104KW的、要求无泄漏的核电站用大型锅炉,如图7-9所示,只有采用焊接方法才能制造出来。

机械制造工程_7.2冶金连接(焊接)成形(图文教程),机械制造工程_7.2冶金连接(焊接)成形,成形,第3张

图7-9 锅炉汽包的焊接结构

4. 与铆接件相比,焊件的质量小,但不可拆卸,更换零部件不方便,易产生残余应力,引起应力集中,焊缝易产生裂纹、夹渣、气孔等缺陷,从而导致焊件承载能力降低甚至脆断,使用寿命缩短。因此,应特别注意焊缝质量的检验。

(二)焊接的分类

根据焊接过程的工艺特点,可将焊接分为熔焊和压力焊两大类。

机械制造工程_7.2冶金连接(焊接)成形(图文教程),机械制造工程_7.2冶金连接(焊接)成形,成形,第4张机械制造工程_7.2冶金连接(焊接)成形(图文教程),机械制造工程_7.2冶金连接(焊接)成形,成形,第5张电阻焊

机械制造工程_7.2冶金连接(焊接)成形(图文教程),机械制造工程_7.2冶金连接(焊接)成形,成形,第6张机械制造工程_7.2冶金连接(焊接)成形(图文教程),机械制造工程_7.2冶金连接(焊接)成形,成形,第7张机械制造工程_7.2冶金连接(焊接)成形(图文教程),机械制造工程_7.2冶金连接(焊接)成形,成形,第8张电弧焊(手弧焊、气体保护焊和埋弧焊) 摩擦焊

机械制造工程_7.2冶金连接(焊接)成形(图文教程),机械制造工程_7.2冶金连接(焊接)成形,成形,第9张机械制造工程_7.2冶金连接(焊接)成形(图文教程),机械制造工程_7.2冶金连接(焊接)成形,成形,第10张 电渣焊 超声波焊

机械制造工程_7.2冶金连接(焊接)成形(图文教程),机械制造工程_7.2冶金连接(焊接)成形,成形,第11张机械制造工程_7.2冶金连接(焊接)成形(图文教程),机械制造工程_7.2冶金连接(焊接)成形,成形,第12张机械制造工程_7.2冶金连接(焊接)成形(图文教程),机械制造工程_7.2冶金连接(焊接)成形,成形,第13张机械制造工程_7.2冶金连接(焊接)成形(图文教程),机械制造工程_7.2冶金连接(焊接)成形,成形,第14张熔焊 电子束焊 压力焊 爆炸焊

机械制造工程_7.2冶金连接(焊接)成形(图文教程),机械制造工程_7.2冶金连接(焊接)成形,成形,第15张机械制造工程_7.2冶金连接(焊接)成形(图文教程),机械制造工程_7.2冶金连接(焊接)成形,成形,第16张 激光焊 扩散焊

机械制造工程_7.2冶金连接(焊接)成形(图文教程),机械制造工程_7.2冶金连接(焊接)成形,成形,第17张机械制造工程_7.2冶金连接(焊接)成形(图文教程),机械制造工程_7.2冶金连接(焊接)成形,成形,第18张 等离子弧焊 高频焊

(三)材料的可焊性

对于不同的材料,在一定的焊接条件下,采用一定的焊接方法,获得优质焊接接头的难易程度叫做材料的可焊性。对于同一种金属材料,采用不同的焊接方法及焊接材料,其可焊性可能也有很大的差别。

金属的可焊性包括工艺可焊性和使用可焊性两个方面。工艺可焊性是指焊接过程中,焊接接头产生工艺缺陷的倾向,尤其是出现各种焊接裂纹的可能性;使用可焊性是指焊接工件在使用过程中其焊接接头的可靠性,包括焊接接头的机械性能和其它特殊性能。这两方面的可焊性可通过估算和实验方法确定。

1. 钢的可焊性

焊接结构所用的金属材料大多数为钢材,影响钢可焊性的主要因素是化学成分。在各种化学元素中,碳对钢的可焊性的影响最为明显,因此可以将其它元素对钢的可焊性的影响转化为产生相同影响的一定量的碳(称为碳当量)来分析,利用碳当量对钢的可焊性进行估算。碳当量越高,钢的可焊性越差。

碳素钢及低合金钢常用的碳当量计算公式为:

机械制造工程_7.2冶金连接(焊接)成形(图文教程),机械制造工程_7.2冶金连接(焊接)成形,成形,第19张

式中:C、Mn、Cr、Mo、V、Ni、Cu为钢中该元素含量的百分数。

碳当量对钢的可焊性的影响见表7-1所示。

表7-1 碳当量对钢的可焊性的影响

碳当量(C当量)

淬硬倾向

可焊性

焊 接 工 艺 特 点

< 0.4%

不明显

除特大件或在低温下焊接外,一般不需加热

0.4%~0.6%

明 显

较 差

焊接时需适当预热和采取一定的工艺措施

> 0.6%

焊接时要求较高的预热温度和采取严格的工艺措施

2. 有色金属的可焊性

一般来讲,有色金属的可焊性比钢差,主要原因有以下几个方面:

⑴ 有色金属容易氧化,所生成的氧化物又往往与基体金属形成共晶体,分布在晶界上导致焊接裂纹。

⑵ 有色金属在液态时吸气性较强,易在焊缝处形成化合物夹渣或气孔。

⑶ 有色金属的导热系数和线膨胀系数往往比较大,焊接冷却后产生的焊接应力大并且易导致焊接裂纹。

因此,有色金属的焊接比较困难,然而有了氩弧焊以后,能够有效地保护熔池,较好地解决了有色金属易氧化的问题,使有色金属的焊接变容易了。

3. 铸铁的可焊性

铸铁的可焊性较差,原因如下:

⑴ 焊缝中容易产生白口组织 由于局部加热,焊后铸铁焊补区冷却速度比铸造时快得多,因而很容易产生白口组织,硬度很高,焊后很难进行机械加工。

⑵ 易产生裂纹 铸铁强度低、塑性差,当焊接应力较大时,就会在焊缝及热影响区产生裂纹,甚至沿焊缝整个断裂。此外,当采用非铸铁组织的焊条或焊丝冷焊铸铁时,铸铁中碳、硫、磷杂质含量高,如母材过多熔入焊缝中,则容易产生热裂纹。

⑶ 易产生气孔 铸铁含碳量高,焊接时易产生CO、CO2气体,铸铁

凝固时由液态变为固态时间较短,熔池中的气体往往来不及逸出而形成气孔。

另外,铸铁流动性好,立焊时熔池中金属液容易流失,所以一般采用气焊、手弧焊(个别大件可采用电渣焊)来焊补铸铁件,按焊前是否预热可分为热焊法与冷焊法两大类。

(四)焊缝的布置原则

焊缝的布置应遵循以下几个原则:

1. 焊缝应尽可能分散,以便减小焊接热影响区,防止粗大组织的出现,如图7-10所示。

机械制造工程_7.2冶金连接(焊接)成形(图文教程),机械制造工程_7.2冶金连接(焊接)成形,成形,第20张

图7-10 焊缝分散布置的设计

机械制造工程_7.2冶金连接(焊接)成形(图文教程),机械制造工程_7.2冶金连接(焊接)成形,成形,第21张

图7-11 焊缝对称布置的设计

2. 焊缝的位置应尽可能对称分布,以抵消焊接变形,如图7-11所示。

3. 焊缝应尽可能避开最大应力和应力集中的位置,以防止焊接应力与外加应力相互叠加,造成过大的应力和开裂,如图7-12所示。

4. 焊缝应尽可能避开机械加工表面,以防止破坏已加工面,如图7-13所示。

5. 焊缝应便于焊接操作,焊缝位置应使焊条易到位,焊剂易保持,电极易安放。

机械制造工程_7.2冶金连接(焊接)成形(图文教程),机械制造工程_7.2冶金连接(焊接)成形,成形,第22张

图7-12 焊缝避开最大应力集中位置的设计 图7-13 焊缝远离机械加工表面的设计

二、熔焊工艺

熔焊的基本原理是将填充材料(焊条或焊丝)和工件连接区的基体材料共同加热到熔化状,在连接处形成熔池,熔池中的液态金属冷却后形成牢固的焊接接头,将工件连接在一起。根据焊接能源种类、能量传递介质和传递方式的不同,熔焊又分为电弧焊、气焊、电渣焊、电子束焊、激光焊和等离子弧焊等。焊接时,熔池中的液态金属与周围的熔渣及空气接触,产生复杂、激烈的化学反应,是焊接中的冶金过程。

(一)熔焊的三个要素

1. 合适的热源

热源的能量要集中,温度要高,以保证金属快速熔化,减小热影响区。满足要求的热源有电弧、等离子弧、电渣热、电子束和激光等。

2. 良好的熔池保护

熔池金属在高温下与空气作用会产生诸多不良反应,形成气孔、夹渣等缺陷,影响焊缝品质。进行熔池保护,可隔绝空气,防止熔池氧化,减少散热,防止强光辐射,并可进行脱氧、脱硫、脱磷,向熔池过渡合金元素,以改善焊接接头性能。常用的熔池保护方法有渣保护、气体保护和渣-气联合保护三类方法。

3. 焊缝填充金属

填充金属是指焊芯与焊丝,主要作用有两个方面:一方面补充材料使焊缝被金属填满;另一方面是给焊缝过渡合金元素,改善焊缝的机械性能。

(二)焊接接头的组织与性能

1. 焊接热循环

在焊接加热和冷却过程中,焊缝及其附近的母材上某点的温度随时间变化的过程叫做焊接热循环。焊缝及其附近的母材上各点在不同时间经受的加热和冷却作用是不同的,在同一时间各点所处的温度变化也不同,因而冷却后的组织和性能也不同。焊接热循环的特点是加热和冷却速度很快。受焊接热循环的影响、焊缝附近的母材因焊接热循环作用而发生组织或性能变化的区域称为焊接热影响区。因此,焊接接头由焊缝区、熔合区和热影响区组成。

2. 焊缝区

热源移走后,熔池中的液态金属立刻开始冷却结晶。晶粒以垂直熔合线的方向向熔池中心生长,成为树枝状枝晶(见图7-14)。这样,低熔点物质被推向焊缝最后结晶部位,形成成分偏析区。宏观偏析的分布与焊缝成形系数B/H有关,当B/H很小时,形成中心线偏析,易产生热裂纹。

机械制造工程_7.2冶金连接(焊接)成形(图文教程),机械制造工程_7.2冶金连接(焊接)成形,成形,第23张

图7-14 焊缝的结晶

焊缝金属冷却快,其宏观组织形态是细晶粒柱状晶,存在成分偏析严重,影响焊缝性能。但是,通过严格控制化学成分,降低碳、磷、硫等含量;通过渗合金调整焊缝的化学成分,使其含有一定的合金元素,能使焊缝金属的强度与母材相当,一般都能达到“等强度”的要求。

3. 熔合区

熔合区中熔合有填充金属与母材金属的多种成份,故成份不均,组织为粗大的过热组织或淬硬组织,是焊接接头中性能最差的部位。

4. 热影响区

热影响区中不同点的最高加热温度不同,组织变化也不同。低碳钢焊接接头中最高加热温度曲线及室温下的组织如图7

-15(a)所示(图7-15(b)为简化了的铁碳相图)。低碳钢的热影响区可再细分为以下几个部分。

机械制造工程_7.2冶金连接(焊接)成形(图文教程),机械制造工程_7.2冶金连接(焊接)成形,成形,第24张

(a)温度曲线及组织图 (b) Fe—C相图

图7-15 低碳钢焊接热影响区的组织变化

⑴ 过热区 过热区晶粒粗大,塑性差,易产生过热组织,是热影响区中性能最差的部位。

⑵ 正火区 正火区因冷却时奥氏体发生重结晶而转变为珠光体和铁素体,所以晶粒细小,性能好。

⑶ 部分相变区 部分相变区存在铁素体和奥氏体两相,其中铁素体在高温下长大,冷却时不变,最终晶粒粗大;而奥氏体发生重结晶转变为珠光体和铁素体,使晶粒细化,所以,此区晶粒大小不均,性能较差。

熔合区、焊接热影响区是影响焊接接头性能的关键部位。焊接接头的断裂往往不是出现在焊缝区中,而是出现在接头的熔合区、热影响区中,尤其是多发生在熔合区及过热区中,因此必须对焊接热影响区进行控制。

一般来说,在保证焊接过程正常进行的前提下,提高焊接速度、减小焊接电流都能使热影响区减小,但焊接热影响区在焊接过程中是不可避免的。焊接一般低碳钢构件时,热影响区较窄,危害性较小,焊后不进行热处理就能保证使用;对于一些容易产生较大焊接应力的结构件,可进行去应力退火;对重要的钢件,焊后要进行正火处理来细化晶粒、减少和消除焊接应力,以改善焊接接头的性能。

(三)熔焊工艺方法

1. 手工电弧焊

手工电弧焊的原理是以有药皮的焊芯为一个电极,以工件为一个电极,通过短路引燃电弧,在电弧的高温作用下,药皮产生大量的气体和熔渣,以实现渣-气联合保护。电弧熔化焊芯和焊缝处的母材金属,手工操作沿焊缝均匀移动电弧形成焊缝,药皮用以保证焊缝的化学成分和力学性能。

手工电弧焊常用的设备为交流电焊机,如图7-16所示。手工电弧焊的焊接过程如图7-17所示。

机械制造工程_7.2冶金连接(焊接)成形(图文教程),机械制造工程_7.2冶金连接(焊接)成形,成形,第25张

图7-16 交流焊机外形结构

机械制造工程_7.2冶金连接(焊接)成形(图文教程),机械制造工程_7.2冶金连接(焊接)成形,成形,第26张

1-焊条芯 2-焊条药皮 3-液态熔渣 4-固态渣壳 5-气体 6-金属熔滴 7-熔池 8-焊缝 9-工件

图7-17 药皮焊条的电弧焊过程

手工电弧焊焊条由焊芯和药皮两部分组成,如图7-18所示。焊芯起导电作用和作为填充焊缝的金属。药皮的作用有:稳弧;产生保护性气体使金属熔滴、熔池与空气隔绝;造渣保护焊缝;加入合金元素提高焊缝的机械性能。

机械制造工程_7.2冶金连接(焊接)成形(图文教程),机械制造工程_7.2冶金连接(焊接)成形,成形,第27张

图7-18 电焊条的结构

手工电弧焊具有如下特点:

⑴ 操作灵活,可在室内、室外、高空等各种场所施焊。

⑵ 所用设备简单,容易维护,焊钳小,使用灵活方便。

⑶ 焊接质量较差。

⑷ 焊接生产效率低,主要适用于单件小批生产。

根据手工电弧焊的特点,手工电弧焊主要用于可焊性好的低碳钢和低合金钢的焊接生产,效率低,主要用于单件小批的短焊缝的焊接。

2. 埋弧自动焊

埋弧自动焊是由机械自动送进作为填充金属的光焊丝,使电弧在较厚的焊剂层下燃烧的熔化焊,又称为焊剂层下自动焊,如图7-19所示。

焊接时,自动焊机机头将光焊丝自动送入电弧区,调整送进速度可保证选定的弧长。电弧在焊剂层下面燃烧,焊机机头由焊接小车带动沿焊件焊缝轨迹做等速运动,电弧也随之运动。焊剂从漏斗中不断流出撒在焊缝处并保证堆积一定的高度,作用与手工电弧焊焊条药皮的作用基本相同。焊接过程中,部分焊剂熔化形成熔渣覆盖在焊缝表面结成渣壳,大部分焊剂未熔化,可回收重新使用。

埋弧自动焊具有如下特点:

⑴ 电弧在焊剂包围下燃烧,所以热效率高。

⑵ 焊丝为连续的盘状焊丝,可连续馈电,易于实现自动化。

⑶ 焊接无飞溅,可实现大电流高速焊接,生产率高。

⑷ 金属利用率高,焊件品质好。

⑸ 弧光埋在焊剂层下面,看不到弧光,焊接烟雾少且不需手工操作,改善了劳动条件。

机械制造工程_7.2冶金连接(焊接)成形(图文教程),机械制造工程_7.2冶金连接(焊接)成形,成形,第28张

(a)埋弧自动焊示意图 (b)焊缝区纵截面图

图7-19 埋弧自动焊

1-自动焊机头 2-焊丝 3-焊丝盘 4-导电嘴 5-焊剂 6-焊剂漏斗 7-工件 8-焊缝 9-

渣壳 10-电弧 11-熔池 12-熔化了的焊剂

由于埋弧自动焊具有以上的特点,所以在焊接中得到广泛应用,常用来焊接长的直线焊缝和较大直径的环焊缝。当工件较厚和成批生产时,其优点更为显著。

3. 气体保护焊

气体保护焊全称为气体保护电弧焊,是指在焊接过程中,从特殊的焊炬或电极的喷嘴中喷出保护气体,使电弧、熔池与周围空气隔开,使焊缝区得到保护,从而获得优质焊缝的焊接方法。

气体保护焊有两种形式:直接电弧法和间接电弧法。直接电弧法是焊丝直接作为电极在焊接过程中熔化作为填充金属,故又称为熔化极气体保护焊,间接电弧法的电极为不熔化的钨极,填充金属由另外输入的焊丝提供,如图7-20所示。

机械制造工程_7.2冶金连接(焊接)成形(图文教程),机械制造工程_7.2冶金连接(焊接)成形,成形,第29张

(a)熔化极气体保护焊 (b)非熔化极气体保护焊

图7-20 气体保护焊

1-喷嘴 2-焊丝 3-保护气体 4-电弧 5-熔池 6-焊缝 7-焊件 8-送丝电极 9-送丝辊轮 10-填充焊丝 11-电极

气体保护焊具有埋弧自动焊的高质量、高效率和手工电弧焊的适应性广的优点。

根据所用保护气体的不同,气体保护焊有以氩气作为保护气体的氩弧焊和以二氧化碳作为保护气体的二氧化碳气体保护焊两种具体焊接工艺。

氩弧焊是以纯度高达99.9%的氩气作为保护气体,主要用于薄板的非熔化极气体保护焊焊接。

氩弧焊具有如下特点:

⑴ 由于采用惰性气体保护,不仅可以杜绝空气中的氧、氮、氢的介入,而且氩气本身也不与金属起反应,故很适宜焊接易被氧化的有色金属。

⑵ 由于电弧在气流压缩下燃烧,热量集中,熔池较小,所以焊接速度快,热影响区窄,焊接后工件变形小。

⑶ 由于电弧稳定,飞溅小,所以焊缝致密,且表面无熔渣。

⑷ 明弧可见,操作方便。

氩弧焊几乎可以焊接所有的金属材料,但氩气成本较高,氩弧焊设备及控制系统比较复杂。而且,为防止保护气流被破坏,氩弧焊只能在室内进行。目前,氩弧焊主要用于焊接铝、镁、钛及其合金以及耐热钢、不锈钢等。

二氧化碳气体保护焊是以二氧化碳作为保护气体,用焊丝作为电极,靠焊丝和焊件之间产生的电弧熔化金属,以自动或半自动方式进行焊接,主要用于熔化极气体保护焊。目前应用较多的是半自动焊,即焊丝送进靠机械自动进行,由焊工手持焊炬进行焊接操作。二氧化碳气体保护焊常用于各种碳素钢、低合金钢薄板和厚板的焊接。

二氧化碳保护焊具有下列特点:

⑴ 由于使用廉价的二氧化碳气体保护,所以成本低。

⑵ 由于电弧在气流压缩下燃烧,所以焊接质量好。

⑶ 焊丝自动送进,生产率高。

⑷ 明弧可见,便于操作。

4. 电渣焊

电渣焊是利用电流通过熔渣时产生的电阻热加热并熔化焊丝和母材来进行焊接的一种熔焊工艺方法,可分为丝极电渣焊、板极电渣焊、熔嘴电渣焊和熔管电渣焊(如图7-21所示)。

在电渣焊时,焊接电源的一个极连接在焊丝的导电嘴上,另一个极连接在工件上。焊丝由机头上的送丝机构上的送丝滚轮驱动,通过导电嘴送入渣池。焊丝在其自身电阻热和渣池电阻热的作用下加热熔化,形成熔滴后穿过渣池进入渣池下面的金属熔池,使渣池的最高温度达到2200k左右(焊钢时)。同时,渣池的最低温度约为2000k,位于渣池内的渣产生剧烈的涡流,使整个渣池的温度比较均匀,并迅速地把渣池中心的热量不断带到渣池四周,从而使工件边缘熔化,这部分熔化金属也进入金属熔池。随着焊丝金属向熔池的过渡,金属熔池液面及渣池表面不断升高。若机头上的送丝导电嘴与金属熔池液面之间相对高度保持不变,机头上升速度应该与金属熔池的上升速度相等。机头的上升速度也就是焊接热源的移动速度,金属熔池底部的液态金属随后冷却结晶,形成焊缝。

电渣焊时,保持合适的渣池深度也是获得良好焊缝的重要条件之一。因此,电渣焊要在垂直位置或接近垂直的位置进行,并且在焊缝的两侧加水冷铜滑块

或固定垫板以防止电渣流失等。水冷铜滑块是随同机头一起上移的。

与一般电弧焊相比,电渣焊有如下优点:

⑴ 电渣焊可一次焊接很厚的工件,故焊接生产率高。

⑵ 电渣焊只需留有一定的间隙而不用开坡口,焊接过程中焊剂、焊丝和电能的消耗量均比埋弧焊低,而且工件越厚效果越明显。

⑶ 电渣焊时,金属熔池的凝固速率低,熔池中的气体和杂质较易浮出,故电渣焊焊缝产生气孔、夹渣的倾向较低。

机械制造工程_7.2冶金连接(焊接)成形(图文教程),机械制造工程_7.2冶金连接(焊接)成形,成形,第30张

图7-21 电渣焊的工艺方法

⑷ 渣池的热容量大,对电流波动的敏感性小,电流密度可在较大的范围(0.2~300A/mm2)内变化。

⑸ 电渣焊时,一般不需要预热。用电渣焊焊接易淬火钢时,产生淬火裂纹的倾向小。

电渣焊广泛用于锅炉制造、重型机械和石油化工等行业。电渣焊除焊接碳钢、合金钢以及铸铁外,也可用来焊接铝、镁、钛、铜及其合金。

5. 等离子弧焊

等离子弧焊是利用机械压缩效应(电弧通过细小孔道时被迫收缩)、热压缩效应(在冷气流的强迫冷却下,离子和电子这两种带电粒子向弧柱中心集中)和电磁收缩效应(弧柱带电粒子的电流线为平行电流线,相互间磁场作用使电流线产生相互吸引而收缩)将电弧压缩为细小的等离子体的一种焊接工艺。等离子弧焊发生器原理如图7-22所示。

等离子弧温度高达24000K以上,能量密度可达105~106W/cm2,因而可一次性熔化较厚的材料。等离子弧焊可用于焊接和切割。

等离子弧焊的特点如下:

⑴ 等离子弧能量密度大,弧柱温度高,穿透能力强,10~12mm厚的钢材可不开坡口,一次焊透双面成形,焊接速度快,生产率高,应力、变形小。

⑵ 电流小到0.1A时,电弧仍能稳定燃烧,保持良好的挺直度与方向性,所以,等离子弧焊可焊接箔材。

机械制造工程_7.2冶金连接(焊接)成形(图文教程),机械制造工程_7.2冶金连接(焊接)成形,成形,第31张

图7-22 等离子弧发生器原理图

等离子弧焊在生产中已得到广泛应用,特别是在国防工业及尖端技术领域所用的铜合金、合金钢以及钨、钼、钴、钛等金属的焊接方面,如钛合金导弹壳体、波纹管及膜盒、微型继电器、电容器的外壳封焊以及飞机上一些薄壁容器等。

等离子弧焊设备比较复杂,气体耗量大,只适合于室内焊接。

6. 电子束焊

现代原子能和航天、航空技术大量应用了锆、钛、钼、铌、铍等稀有、难熔或活性金属,用一般焊接方法难以得到满意的结果,20世纪50年代研制出的真空电子束焊接方法成功地实现了这些金属的焊接。电子束焊是利用高速运动的电子撞击工件时将动能转化为热能并将焊缝熔化进行熔化焊的方法。电子枪、工件及夹具全部装在真空室内。电子枪由加热灯丝、阴极、阳极及聚焦装置等组成。阴极被灯丝加热到2600K时能发出大量电子。这些电子在阴极与阳极(焊件)间的高电压作用下,经电磁透镜聚焦成电子流束,以高速(1.6×106km/s)射向焊件表面,将动能转变为热能。聚焦电磁透镜由单独的直流电源供电,为调节电子束的相对位置,还另设有偏转装置。真空电子束焊要求真空室的真空度一般为10-2~10-3Pa。当电子束能量密度较小时,加热区集中在工件表面,这时,电子束焊与电弧焊相似;而电子束能量高时,将产生穿孔效应,熔深可达200mm,用于穿透焊缝的结构。但真空电子束焊对真空度的要求很高。为扩大电子束焊的应用范围,先后研制出了低真空电子束焊和非真空电子束焊,为防止电子枪的污染,采用氦气隔离电子枪与工作室,使电子束能在大气中进行焊接。

电子束焊一般不加填充金属,如要求焊缝有突出表面的堆高可在接缝预加垫片。对接焊缝间隙为板厚的10%,一般不能超过0.2mm。

电子束焊具有如下特点:

⑴ 保护效果好,焊缝品质好,适用范围广。

⑵ 能量密度大,穿透能力强,可焊接厚大截面工件和难熔金属。

⑶ 加热范围小,焊接变形小。

⑷ 电子束焊成本高。

电子束焊主要用于微电子器件焊装、导弹外壳的焊接、核电站锅炉汽包和精度要求高的

齿轮等工件的焊接。

7. 激光焊

激光焊是利用光学系统将激光聚焦成微小光斑,使其能量密度大,从而使材料熔化焊接。激光焊分为脉冲激光焊和连续激光焊,脉冲激光焊主要用于微电子工业中的薄膜、丝、集成电路内引线和异种材料焊接;连续激光焊可焊接中等厚度的板材,焊缝很小。图7-23为用于焊接和热处理的连续作用的激光焊装置示意图。工件安装在工作台上,激光器发出连续激光束,经镜面和转动镜面反射后,或经聚焦系统射向焊接装置,或沿光束通道经聚焦系统用来进行热处理。

激光焊具有下列特点:

⑴ 高能高速焊,无焊接变形。

⑵ 灵活性大。

⑶ 生产率高,材料不易氧化。

⑷ 设备复杂,目前主要用于薄板和微型件的焊接。

机械制造工程_7.2冶金连接(焊接)成形(图文教程),机械制造工程_7.2冶金连接(焊接)成形,成形,第32张

图7-23 激光焊装置示意图

三、压力焊工艺

(一)压力焊的定义

压力焊是指通过加热使金属达到塑性状态,通过加压使其产生塑性变形、再结晶和原子扩散,最后使两个分离表面的原子接近到晶格距离(0.3~0.5nm),形成金属键,从而获得不可拆卸接头的一类焊接方法。

在压力焊中,为使金属达到塑性状态,提高原子的扩散能力,通常要对焊接处进行加热,热源形式为电阻热、高频热和摩擦热等。

为使金属产生塑性变形和再结晶,通常要对焊接区施加一定的力,作用形式可为静压力、冲击力(锻压力)和爆炸力等。

(二)压力焊工艺方法

1. 电阻焊

电阻焊是利用电阻热为热源,并在压力下通过塑性变形和再结晶而实现焊接的压力焊工艺。电阻焊过程包括预压、通电加热、在压力下冷却结晶或塑性变形和再结晶。为使焊缝生成在两板的贴合面附近,接触面上必须有一定的接触电阻。

通电后,因两工件间接触电阻的存在,贴合面处温度迅速上升到熔点以上。断电后,熔核立即开始冷却结晶,由于有维持压力或顶锻压力的作用,从而消除了缩孔和缩松等缺

机械制造工程_7.2冶金连接(焊接)成形(图文教程),机械制造工程_7.2冶金连接(焊接)成形,成形,第33张

图7-24 点焊熔核形成示意图

陷,并产生塑变和再结晶,细化晶粒,获得组织致密的焊点。点焊熔核形成过程如图7-24所示。

电阻焊有点焊、缝焊和对焊三种工艺方法。点焊和缝焊对于被焊接工件的厚度都有要求,用于薄板的焊接,点焊用于没有密封要求的薄板的焊接,缝焊用于有密封要求的薄板的焊接。对焊是利用电阻热将杆状工件端面对接焊接的一种电阻焊方法,主要用于钢筋、钢轨、锚链、管子等的焊接,也可用于异种金属的焊接,因接头中无过热区和铸态组织,所以,其焊接接头性能好。

2. 摩擦焊

摩擦焊是利用工件接触面相对旋转运动中相互摩擦所产生的热使端部达到塑性状态, 然后迅速顶锻、完成焊接的一种压力焊方法。

机械制造工程_7.2冶金连接(焊接)成形(图文教程),机械制造工程_7.2冶金连接(焊接)成形,成形,第34张

图7-25 摩擦焊示意图

摩擦焊工艺过程原理如图7-25所示,两工件都具有圆形截面,焊接前,一个(图中所示的左工件)被夹持在可旋转的夹头上,另一个(图中所示的右工件)被夹持在能够沿轴向移动加压的夹头上。首先,左工件高速旋转(步骤Ⅰ);右工件向左工件靠近,与左工件接触并施加足够大的压力(步骤Ⅱ);这时,工件开始摩擦,摩擦表面

免责声明:
1;所有标注为智造资料网zl.fbzzw.cn的内容均为本站所有,版权均属本站所有,若您需要引用、转载,必须注明来源及原文链接即可,如涉及大面积转载,请来信告知,获取《授权协议》。
2;本网站图片,文字之类版权申明,因为网站可以由注册用户自行上传图片或文字,本网站无法鉴别所上传图片或文字的知识版权,如果侵犯,请及时通知我们,本网站将在第一时间及时删除,相关侵权责任均由相应上传用户自行承担。
[complaint:内容投诉]
智造资料网打造智能制造3D图纸下载,在线视频,软件下载,在线问答综合平台 » 机械制造工程_7.2冶金连接(焊接)成形(图文教程)