AutoCAD十分钟快速绘制板式家具攻略

在家具设计行业,板式家具的绘图相对简单,因而简单的图纸就要求设计师的制图速度要有明显的提升,本教程只在于讲解如何快速绘制板式家具的图纸,同时以一个简单衣柜为实例为大家讲解。通过本教程的学习,设计师完成下面这份图纸只需在十分钟内即可完成,大大提高的效率,省下来的时间您可以学习更多专业知识或者休息或者您不用加班了,这就是本教程的宗旨所在!

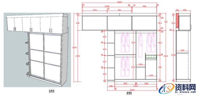
AutoCAD十分钟快速绘制板式家具攻略,图纸01.jpg,绘制,AutoCAD,第1张

    下面我以上图为例进行讲解:

1.首先打开CAD,在模型空间绘制矩形(下柜外围)尺寸为2200,2100  ,在其上绘制矩形(上柜外围),然后点菜单  家具设计 下拉找到立板向右,点击两点输入280 如下图所示:

 AutoCAD十分钟快速绘制板式家具攻略,CAD板式家具插件的使用,绘制,AutoCAD,第2张 AutoCAD十分钟快速绘制板式家具攻略,CAD板式家具插件的使用,绘制,AutoCAD,第3张

2.点击层板上向,绘制转角踢脚高50, 上面分四个格点均分后输入4,绘制下柜右侧板和踢脚及上层板

AutoCAD十分钟快速绘制板式家具攻略,CAD板式家具插件的使用,绘制,AutoCAD,第4张  AutoCAD十分钟快速绘制板式家具攻略,CAD板式家具插件的使用,绘制,AutoCAD,第5张

3.绘制右下角裤抽和多宝格

AutoCAD十分钟快速绘制板式家具攻略,CAD板式家具插件的使用,绘制,AutoCAD,第6张AutoCAD十分钟快速绘制板式家具攻略,CAD板式家具插件的使用,绘制,AutoCAD,第7张

4.上柜基本完成,现在绘制上柜同样道理,即可绘制完成整个衣柜

免责声明:
1;所有标注为智造资料网zl.fbzzw.cn的内容均为本站所有,版权均属本站所有,若您需要引用、转载,必须注明来源及原文链接即可,如涉及大面积转载,请来信告知,获取《授权协议》。
2;本网站图片,文字之类版权申明,因为网站可以由注册用户自行上传图片或文字,本网站无法鉴别所上传图片或文字的知识版权,如果侵犯,请及时通知我们,本网站将在第一时间及时删除,相关侵权责任均由相应上传用户自行承担。
[complaint:内容投诉]
智造资料网打造智能制造3D图纸下载,在线视频,软件下载,在线问答综合平台 » AutoCAD十分钟快速绘制板式家具攻略