刀具半径补偿加工外轮廓编程举例(图文教程)

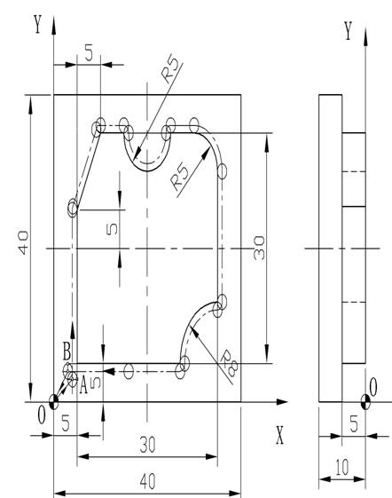
    加工图所示外轮廓,用刀具半径补偿指令编程。

刀具半径补偿加工外轮廓编程举例(图文教程),刀具半径补偿加工外轮廓编程举例,半径,第1张 

刀具半径补偿加工外轮廓

外轮廓采用刀具半径左补偿,为了提高表面质量,保证零件曲面的平滑过渡,刀具沿零件轮廓延长线切入与切出。O→A为刀具半径左补偿建立段,A点为沿轮廓延长线切入点,B→O为刀具半径补偿取消段,B点为沿轮廓延长线切出点。数控程序如下:

O1:

G90G54G00Z100.0S800M03;

X0Y0;

Z5.0;

G01Z-5.0F100;

G41X5.0Y3.0F120D31;

Y25.0;

X10.0Y35.0;

X15.0;

G03X25.0R5.0;

G01X30.0;

G02X35.0Y30.0R5.0;

G01Y13.0;

G03X27.0Y5.0R8.0;

G01X3.0;

G40X0Y0;

G00Z100.0;

M05;

M30;

说明:1)D代码必须配合G41或G42指令使用,D代码应与G41或G42指令在同一程序段给出,或者可以在G41或G42指令之前给出,但不得在G41或G42指令之后;

2)D代码是刀具半径补偿号,其具体数值在加工或试运行之前以设定在刀具半径补偿存储器中;

3)D代码是模态代码,具有继承性。

免责声明:
1;所有标注为智造资料网zl.fbzzw.cn的内容均为本站所有,版权均属本站所有,若您需要引用、转载,必须注明来源及原文链接即可,如涉及大面积转载,请来信告知,获取《授权协议》。
2;本网站图片,文字之类版权申明,因为网站可以由注册用户自行上传图片或文字,本网站无法鉴别所上传图片或文字的知识版权,如果侵犯,请及时通知我们,本网站将在第一时间及时删除,相关侵权责任均由相应上传用户自行承担。
[complaint:内容投诉]
智造资料网打造智能制造3D图纸下载,在线视频,软件下载,在线问答综合平台 » 刀具半径补偿加工外轮廓编程举例(图文教程)