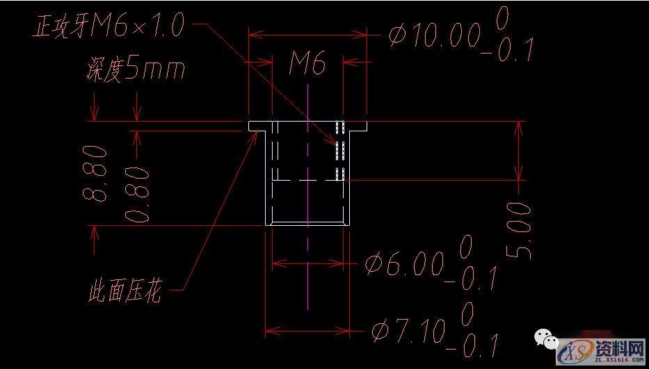
aphdolindy:
产品为环保黄铜,牌号没有限制。料厚0.8mm。产品法兰这端攻牙是M6*1.0的底孔最大做到5.65mm,小头尺寸是6mm。想请教一下小头这个6mm 如果要在模具里该怎么实现。



carlosliu:
也可以用压铸的方法直接做出来,模具内直接攻牙。
aphdolindy回复 carlosliu:
现在老板的意思就是想上模内攻牙,想开一套连续模直接把产品做出来。毕竟是圆的产品,也没有缺口什么的,靠弹簧夹头来夹紧攻牙,现在做的攻牙模具不是很理想,产量、良品率太低
LIAOYAO:
楼主不考虑攻丝时一并铰孔吗?又没多出工序。
aphdolindy回复LIAOYAO:
实物就是钻铰的。小批量的时候出现M6牙孔与法兰不垂直的问题。所以才想说这个东东能不能直接在模具里打出来。
LIAOYAO回复aphdolindy:
工装、定位的问题不先解决,倒是先甩锅给工艺
aphdolindy回复LIAOYAO:
铰孔也存在一个废屑的问题,光靠气吹有时候不一定能吹干净。所以想说看看是不是有其他更好的办法来实现。
LIAOYAO 回复 aphdolindy :
模具里有合适加反向挤压冲子吗?
挤压后外径会卡紧凹模,筒壁长度会略增长。须要事前做好评估。
aphdolindy回复 LIAOYAO:
我现在想先把材料中间墩薄0.15,再来拉伸,把系数放大一些。再不行就分两道料带整卷墩薄了去退火,回来再拉伸。
carlosliu:
想知道楼主目前的生产率和良品率?
靠弹簧夹头来夹紧攻牙,不好。应该先攻牙再切断。不用一个一个夹住,太小了难夹。
aphdolindy回复 carlosliu:
KN95口罩耳带机现货、N95切片加内置鼻梁一体机、N95口罩机整套现货,厂家直销没有中间商,预订电话:13018639977
CNC数控编程培训、塑胶模具设计培训,冲压模具设计培训,精雕、ZBrush圆雕培训、Solidworks产品设计培训、pro/E产品设计培训,潇洒职业培训学校线下、线上网络学习方式,随到随学,上班学习两不误,欢迎免费试学!
联系电话:13018639977(微信同号)QQ:2033825601
学习地址:东莞市横沥镇新城工业区兴业路121号-潇洒职业培训学校
1;所有标注为智造资料网zl.fbzzw.cn的内容均为本站所有,版权均属本站所有,若您需要引用、转载,必须注明来源及原文链接即可,如涉及大面积转载,请来信告知,获取《授权协议》。
2;本网站图片,文字之类版权申明,因为网站可以由注册用户自行上传图片或文字,本网站无法鉴别所上传图片或文字的知识版权,如果侵犯,请及时通知我们,本网站将在第一时间及时删除,相关侵权责任均由相应上传用户自行承担。
[complaint:内容投诉]
智造资料网打造智能制造3D图纸下载,在线视频,软件下载,在线问答综合平台 » 模具设计:此黄铜铆柱工艺开模的方法

