塑胶模具设计之医疗注塑产品:输液内盖设计总结

一.产品介绍

输液内盖属于医疗产品,输液外盖、输液内盖和输液接头三件组成一个医疗产品系列,广泛应用于各大医院和医疗机构,对产品本身提出了很高的要求。塑料输液容器用聚丙烯组合盖一般采用进口设备及模具,保证产品外观的光洁度和尺寸的均一性。医疗产品一般在十万级无尘生产车间,保证产品的洁净度。

塑胶模具设计之医疗注塑产品:输液内盖设计总结,模具设计,注塑,塑胶,第1张

图1 输液内盖照片

塑胶模具设计之医疗注塑产品:输液内盖设计总结,模具设计,注塑,塑胶,第2张

图2输液内盖照片(照片中高度较高的为外盖,小的为内盖)

二.塑件分析

输液内盖产品尺寸如图3,其最大外径为26.3mm,高度10.5mm, 材料为医疗级PP,缩水率为1.014,重量为1.52克,由于塑件的特殊使用要求,塑件不得存在各种缺陷,不得存在轻微的披锋。

塑胶模具设计之医疗注塑产品:输液内盖设计总结,模具设计,注塑,塑胶,第3张

图3输液内盖产品图

三.模具设计要点

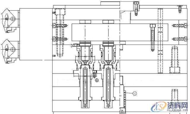
1.模具排位:

输液内盖属于大批量生产的塑胶产品,属于一次性使用之医疗产品。因此,模具的型腔数量尽可能多,为此设计了1出16的模具结构,见图4-6.由于塑件为热流道成型,需要设计非标模胚。注射机的型号为CJ180M3V,模胚为非标DI3535.

2.由于塑件属于医疗产品,模具不得存在油污。模胚整体采用不锈钢制造,大部分模仁零件采用不锈钢制造,并经过热处理。

3.模胚孔位加工的公差为+-0.015mm,孔径公差为+0.02mm.

塑胶模具设计之医疗注塑产品:输液内盖设计总结,模具设计,注塑,塑胶,第4张

图4输液内盖产品模具图

4.进胶方式;模具排位为16腔,模具采用了热流道的进胶方式,在塑件顶部一点进胶。

5.塑件的脱模是通过推板顶出,推圈零件图见图9右上角。

6.冷却运水的设计:每一块模板都设计了运水,见模具图。

塑胶模具设计之医疗注塑产品:输液内盖设计总结,模具设计,注塑,塑胶,第5张

图5输液内盖产品模具图

7.热流道牌号:

采用SINO热流道系统,这个品牌是韩国YUDO公司专门为中国国内模具开发的热流道系统。

8.所有钢材及其热处理均见明细表,关键零件见图7。

塑胶模具设计之医疗注塑产品:输液内盖设计总结,模具设计,注塑,塑胶,第6张

图6输液内盖产品模具图

9.为减少热量散失,面板与底板分别加了隔热板,见模具设计图6。

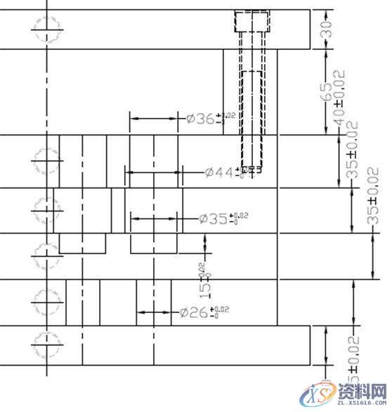
10.模具设计需要注意的是,模板的厚度公差需要控制,所有零件必须按照图纸公差加工,不得出现配制或随意修整,手工挫修等是必须避免的。模板公差见图10所示。

塑胶模具设计之医疗注塑产品:输液内盖设计总结,模具设计,注塑,塑胶,第7张

图7输液内盖产品模具图

塑胶模具设计之医疗注塑产品:输液内盖设计总结,模具设计,注塑,塑胶,第8张

图8输液内盖模具图

塑胶模具设计之医疗注塑产品:输液内盖设计总结,模具设计,注塑,塑胶,第9张

图9模具零件图

塑胶模具设计之医疗注塑产品:输液内盖设计总结,模具设计,注塑,塑胶,第10张

图10模板加工公差

产品总结

此模具通过国内几家大型医药公司十几年来的使用表明,模具设计合理,模具寿命长,耐用,为客户创造了价值,可供类似产品的模具设计提供借鉴。

东莞潇洒职业培训学校目前开设课程有:学历提升、积分入户、数控编程培训、塑胶模具设计培训,压铸模具设计培训、冲压模具设计培训,精雕、ZBrush圆雕培训、Solidworks产品设计培训、pro/E产品设计培训、AutoformR7工艺分析培训,非标自动化设计、PLC编程、CNC电脑锣操机、平面设计等培训,潇洒职业培训学校线下、线上等网络学习方式,随到随学,上班学习两不误,欢迎免费试学!
联系电话:13018636633(微信同号)  QQ:1740467385
学习地址:东莞市横沥镇

免责声明:
1;所有标注为智造资料网zl.fbzzw.cn的内容均为本站所有,版权均属本站所有,若您需要引用、转载,必须注明来源及原文链接即可,如涉及大面积转载,请来信告知,获取《授权协议》。
2;本网站图片,文字之类版权申明,因为网站可以由注册用户自行上传图片或文字,本网站无法鉴别所上传图片或文字的知识版权,如果侵犯,请及时通知我们,本网站将在第一时间及时删除,相关侵权责任均由相应上传用户自行承担。
[complaint:内容投诉]
智造资料网打造智能制造3D图纸下载,在线视频,软件下载,在线问答综合平台 » 塑胶模具设计之医疗注塑产品:输液内盖设计总结