塑胶模具设计之超复杂的冷却弯管圆弧抽芯方案

冷却弯管是自动化加工机床上一个重要部件。高速运转的机床在加工钢件时,温度升高会使刀具性能下降,适当的冷却是保证加工顺利进行的有效手段。冷却弯管内部通过低温高压气流来冷却刀具。冷却弯管产品图见图1,产品最大外形尺寸为209.80 mm x101.80 mm x 53.23 mm,塑件平均胶位厚度3.20 mm,塑件材料为PC,缩水率为1.006,塑件质量为70.38 克。塑件技术要求为不得存在披峰、注塑不满、流纹、气孔、翘曲变形、银纹、冷料、喷射纹、气泡等各种缺陷。

塑胶模具设计之超复杂的冷却弯管圆弧抽芯方案,圆弧,模具设计,冷却,塑胶,第1张

图1冷却弯管产品图

从图1 可以看出,塑件造型为空间扭曲圆管,底部有安装法兰,利用两个通孔可以固定在机床上。冷却弯管在空间两个方向扭曲,造型极不规则。因此,塑件的模具设计具有很大的难度。由于模具设计的圆弧抽芯和塑件顶出都存在难度,塑件法兰处外形也同样需要抽芯,模具机构复杂,模具排位只能采取1 出1,模具设计图见图2. 模胚为非标模胚CH4550 A120 B120 C250;前后模仁利用虎口实现互锁。前后模都设计了回针,前模回针碰后模回针使后模的两层顶针板回位。前模回针伸入后模,后模回针较短,这样设计不会影响到塑件取出。

塑胶模具设计之超复杂的冷却弯管圆弧抽芯方案,圆弧,模具设计,冷却,塑胶,第2张

图2冷却弯管产品图

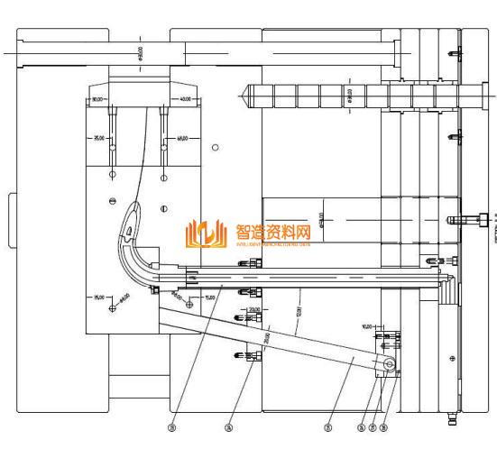
塑件长度较长,熔融塑料的流程较长,浇口选择在塑件口部直径变细处两点进胶。浇口为潜伏式浇口,无需人工修剪。熔融塑料从主流道进入分型面后,沿着圆弧分流道进入到塑件口部直径变细处,从圆弧芯的顶部绕过到达塑件另一侧。塑件底部法兰处形成倒扣,需要设计哈夫滑块抽芯,此滑块用斜导柱1 和斜导柱2 驱动。冷却弯管的内部芯子需要近似分为两段,口部的一段近似作为圆弧利用滑块抽芯;两段内芯的结合处设计锥台互锁定位。见图3.底部的圆弧内芯连接在直顶23 上。口部的圆弧利用油缸驱动滑块抽芯来解决。拉杆10 固定在油缸活塞杆上。导向块12 安装在拉杆10 的U 型槽中,上下垫有铜片。拉杆10 带动导向块12 围绕定位棒15 摆动旋转,从而带动圆弧芯子实现抽芯。

塑胶模具设计之超复杂的冷却弯管圆弧抽芯方案,圆弧,模具设计,冷却,塑胶,第3张

图3冷却弯管模具图

模具设计的另一个难点是塑件的顶出。口部的圆弧抽芯完成后,塑件仍然留在后模中,底部的圆弧抽芯尚未完成。经过分析,塑件的顶出和底部圆弧抽芯结合在一起考虑。底部圆弧抽芯可以利用前述的类似机构来实现抽芯脱模,也可利用圆弧齿轮摆动来实现抽芯。

塑胶模具设计之超复杂的冷却弯管圆弧抽芯方案,圆弧,模具设计,冷却,塑胶,第4张

图4冷却弯管模具图

实际模具设计中,设计了更为简单的抽芯脱模方式。即利用二次顶出来实现塑件脱模具。该二次顶出机构有两层顶针板。水口顶针22 和直顶23 固定在底层顶针板上;斜顶则安装在顶层顶针板上。上下两层顶针板设计有导向中托司,其运动控制利用扣机9 实现。

塑胶模具设计之超复杂的冷却弯管圆弧抽芯方案,圆弧,模具设计,冷却,塑胶,第5张

图5冷却弯管模具图

模具顶出系统设计为欧洲模具风格,即强拉强顶,回针上不装弹簧。注塑机顶棍顶出上层顶针板,上层顶针板通过扣机带动下层顶针板。因此,顶出开始时,水口顶针、直顶和斜顶一起顶出,塑件脱离后模一段距离。此时,底部的圆弧抽芯尚未解决,圆弧芯子连接在直顶上。到达行程后,扣机松开,下层顶针板停止运动,塑件和直顶静止不动,上层顶针板上的斜顶进入塑件的底部,推动塑件绕后模圆弧芯子旋转实现脱模。两段圆弧芯子通过直顶和滑块都设计了冷却运水,保证模具的正常注塑生产。

塑胶模具设计之超复杂的冷却弯管圆弧抽芯方案,圆弧,模具设计,冷却,塑胶,第6张

图6冷却弯管模具图

塑胶模具设计之超复杂的冷却弯管圆弧抽芯方案,圆弧,模具设计,冷却,塑胶,第7张

图7冷却弯管模具图

塑胶模具设计之超复杂的冷却弯管圆弧抽芯方案,圆弧,模具设计,冷却,塑胶,第8张

图8冷却弯管模具图

塑胶模具设计之超复杂的冷却弯管圆弧抽芯方案,圆弧,模具设计,冷却,塑胶,第9张

图9冷却弯管模具图

塑胶模具设计之超复杂的冷却弯管圆弧抽芯方案,圆弧,模具设计,冷却,塑胶,第10张

图10冷却弯管模具图

东莞潇洒职业培训学校目前开设课程有:学历提升、积分入户、数控编程培训、塑胶模具设计培训,压铸模具设计培训、冲压模具设计培训,精雕、ZBrush圆雕培训、Solidworks产品设计培训、pro/E产品设计培训、AutoformR7工艺分析培训,非标自动化设计、PLC编程、CNC电脑锣操机、平面设计等培训,潇洒职业培训学校线下、线上等网络学习方式,随到随学,上班学习两不误,欢迎免费试学!
联系电话:13018636633(微信同号)  QQ:1740467385
学习地址:东莞市横沥镇新城工业区兴业路121号-潇洒职业培训学校

免责声明:
1;所有标注为智造资料网zl.fbzzw.cn的内容均为本站所有,版权均属本站所有,若您需要引用、转载,必须注明来源及原文链接即可,如涉及大面积转载,请来信告知,获取《授权协议》。
2;本网站图片,文字之类版权申明,因为网站可以由注册用户自行上传图片或文字,本网站无法鉴别所上传图片或文字的知识版权,如果侵犯,请及时通知我们,本网站将在第一时间及时删除,相关侵权责任均由相应上传用户自行承担。
[complaint:内容投诉]
智造资料网打造智能制造3D图纸下载,在线视频,软件下载,在线问答综合平台 » 塑胶模具设计之超复杂的冷却弯管圆弧抽芯方案