塑胶模具结构按功能分为七大系统,分别为:浇注系统、温控系统、成型零件系统、机构系统、导向定位系统、顶出系统、排气系统、等组成。

第一系统:浇注系统
是指塑料从射嘴进入型腔前的流道部分,包括主流道、冷料井、分流道、进浇口、拉料针等。

第二系统:温控系统
调温系统:为了满足注射工艺对模具温度的要求,需要有调温系统对模具的温度进行调节。对于热塑性塑料用注塑模,主要是设计冷却系统使模具冷却(也可对模具进行加热)。模具冷却的常用办法是在模具内开设冷却水通道,利用循环流动的冷却水带走模具的热量;模具的加热除可利用冷却水通热水或热油外,还可在模具内部和周围安装电加热元件。

第三系统:成型零件系统
成型零件系统:是指构成制品形状的各种零件组合,包括动模仁、动模镶件、定模仁、定模镶件等。
定模正常情况下,成型制品外表面,动模正常情况下,成型制品内表面。
定动模仁组合在一起,就形成了型腔,然后再通后流注系统将塑胶流入型腔,等冷却后再将定动模仁打开就是需要的产品。

第四系统:机构系统
机构系统:是指产品存在的倒扣与正常的脱模方向不一致,需要做机构抽芯才到满足产品的正常脱模。
模具上正常的机构基本上分为两种,一种是外部的侧向抽芯(如外滑块),另一种是内部的侧向抽芯(如斜顶、内滑块)。

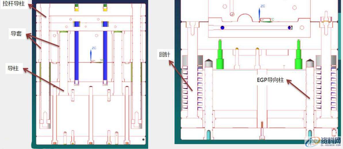
第五系统:导向定位系统
导向系统:是指模具上各种滑动系统,如模架导柱、导套;模架上面的零度定位块;顶针板上的回针与EGP导柱;以及模具上的模板。

第六系统:顶出系统
顶出系统:是指产品需要从动模仁出来,所以需要顶出系统,顶针系统基本上包括,顶针顶出、推块顶出、推板顶出、液压缸顶出、气压顶出等。

第七系统:排气系统
排气系统:指的是在注塑过程中,熔体将取代型腔中的气体,如果气体排出不及时,将会造成熔体充填困难,造成注射量不足而不能充满型腔,会造成产品局部烧焦或者结合线明显、产品结合的区域不易充填。
排气的种类有很多:常规的做法在母模仁分型面做排气槽、也可以在分模侧做排气槽、公模侧做排气片、镶件排气、镶针排气、顶针排气、排气钢排气等!

1;所有标注为智造资料网zl.fbzzw.cn的内容均为本站所有,版权均属本站所有,若您需要引用、转载,必须注明来源及原文链接即可,如涉及大面积转载,请来信告知,获取《授权协议》。
2;本网站图片,文字之类版权申明,因为网站可以由注册用户自行上传图片或文字,本网站无法鉴别所上传图片或文字的知识版权,如果侵犯,请及时通知我们,本网站将在第一时间及时删除,相关侵权责任均由相应上传用户自行承担。
[complaint:内容投诉]
智造资料网打造智能制造3D图纸下载,在线视频,软件下载,在线问答综合平台 » 塑胶模具的七大系统,模块化学习与了解

