一:弹簧复位
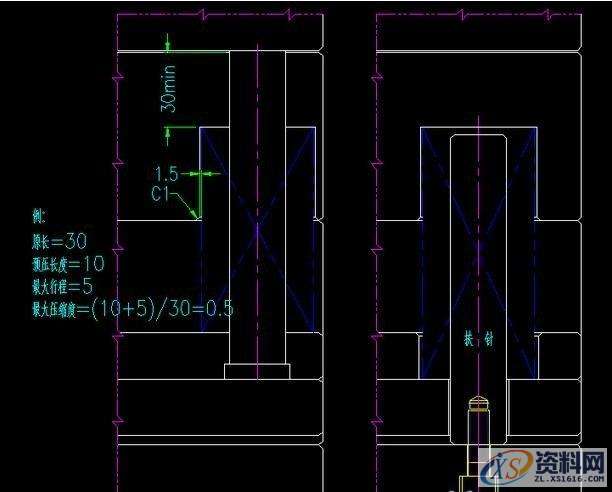
1).弹簧通常加在回针上,且弹弓周围须有1.5mm空位及加上倒角.回针至少要有30mm管位.
2).在所用弹簧过长回针管位不够,或在模具上四支弹簧的力量不够需另加弹簧时,可加扶针再套上弹簧如(b图).
3).在顶出行程超过180mm,或模胚在7070以上时,不能只靠弹簧复位,需加辅助复位机构.考虑用油缸复位,
4).弹簧压缩比计算公式如下图(a图)所示.黄弹簧压缩比不能超过0.55,蓝弹簧不能超过0.45.
1).弹簧通常加在回针上,且弹弓周围须有1.5mm空位及加上倒角.回针至少要有30mm管位.
2).在所用弹簧过长回针管位不够,或在模具上四支弹簧的力量不够需另加弹簧时,可加扶针再套上弹簧如(b图).
3).在顶出行程超过180mm,或模胚在7070以上时,不能只靠弹簧复位,需加辅助复位机构.考虑用油缸复位,
4).弹簧压缩比计算公式如下图(a图)所示.黄弹簧压缩比不能超过0.55,蓝弹簧不能超过0.45.

二:拉杆强制复位及回复块标准
1: 拉杆强制复位使用方法与原则
1).在不便于弹簧复位时,可用拉杆复位.
2).在顶针板靠近回复块两侧处须加两个螺丝,以免顶出时回复块处的面针板变形.螺丝 大小同顶针板螺丝.
3).一套模具上回复块个数为1,2,4个.
使用方法如下图片所示:

2: 回复块标准
回复块材料用黄牌,氮硬.

三:回针下面加弹弓胶的复位原则
回针下面加弹弓胶是为了使回针顶部先接触而受力.有以下几种情况回针底部必须加弹弓胶:
1).顶针或司筒针与前模或前模镶针碰穿.
2).斜顶或直顶与前模相碰.
下图为弹弓胶使用的方法与位置:

下图片为在什么情况使用说明

四: 先复位机构
在以下情况要求安装先复位机构,以保证安全合模.
1).行位下有顶针
2).行位插入斜顶内
3).前模行位碰斜顶
先复位结构如下:

东莞潇洒职业培训学校开设课程有:高升专、专升本学历提升、全日制中职学校学位、积分入户、数控编程培训、塑胶模具设计培训,压铸模具设计培训、冲压模具设计培训,精雕、ZBrush圆雕培训、Solidworks产品设计培训、pro/E产品设计培训、AutoformR7工艺分析培训,非标自动化设计、PLC编程、CNC电脑锣操机、平面设计等培训,潇洒职业培训学校线下、线上等网络学习方式,随到随学,上班学习两不误,欢迎免费试学!
联系电话:18029180991(微信同号)QQ:3461766451
学校官网:www.dgxspx.com 智造人才网:www.58hr.net
学习地址:东莞市横沥镇新城工业区兴业路121号-潇洒职业培训学校
免责声明:
1;所有标注为智造资料网zl.fbzzw.cn的内容均为本站所有,版权均属本站所有,若您需要引用、转载,必须注明来源及原文链接即可,如涉及大面积转载,请来信告知,获取《授权协议》。
2;本网站图片,文字之类版权申明,因为网站可以由注册用户自行上传图片或文字,本网站无法鉴别所上传图片或文字的知识版权,如果侵犯,请及时通知我们,本网站将在第一时间及时删除,相关侵权责任均由相应上传用户自行承担。
[complaint:内容投诉]
智造资料网打造智能制造3D图纸下载,在线视频,软件下载,在线问答综合平台 » 顶出复位机构设计原则与注意事项!
1;所有标注为智造资料网zl.fbzzw.cn的内容均为本站所有,版权均属本站所有,若您需要引用、转载,必须注明来源及原文链接即可,如涉及大面积转载,请来信告知,获取《授权协议》。
2;本网站图片,文字之类版权申明,因为网站可以由注册用户自行上传图片或文字,本网站无法鉴别所上传图片或文字的知识版权,如果侵犯,请及时通知我们,本网站将在第一时间及时删除,相关侵权责任均由相应上传用户自行承担。
[complaint:内容投诉]
智造资料网打造智能制造3D图纸下载,在线视频,软件下载,在线问答综合平台 » 顶出复位机构设计原则与注意事项!

