2. 范围:适用于本中心培训教材。
3. 职责:学员根据本文件要求,遵循并执行之。
4. 内容
4.1 复合模的结构
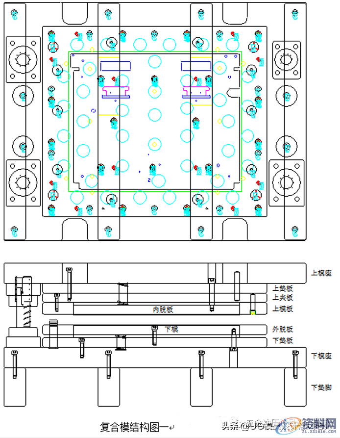
4.1.1:复合模结构一:(见图一)

1.此结构为普通复合模结构
2.当T大于或等于0.5时, 内脱出上模1.0, 脱料板出下模1.0,当T小于0.5时, 内脱出上模2T, 脱料板出下模2T。
4.1.2:复合模结构二:(见图二)

复合模结构图二
1.此结构为普通复合模一般脱料加双层脱料结构。
2.此结构适用于因产品局部冲头太多或狭窄而无法将弹簧直接顶在内脱板上,在局部采用双层脱料结构。当一套模采用双层脱料多于三处时,此种结构不适用,需采用五层板形式脱料,另见复合模结构三。
3.采用双层脱料时,上模座正面需攻止付牙孔,以方便折模。
4.1.3:复合模结构三:(见图三)

复合模结构图三
1,此结构为复合模的五层板脱料结构。
2,此结构适用于因产品冲头太多或产品狭窄而无法将弹簧直接顶在内脱板上,采用此结构。
3,上打板一般采用CR12材料,热处理至HRC:50-53。
4,当模具较小时,上垫块可改用模板形式中间掏空。
4.1.4:复合模结构四:(见图4)

复合模结构图四
1,此结构为复合模的打杆脱料结构。
2,此结构适用于因产品冲头太多或产品太小,需经客户允许的情况下采用此结构。
3,上打板一般采用CR12材料,热处理至HRC:50-53,内脱做扣位,直接挂于上模上。
4.1.5:复合模结构五:(见图五)

复合模结构图五
1,此结构为复合模的弹簧加顶板脱料结构。
2,此结构适用于因产品冲头太多或产品太小,而无法将弹簧作用于内脱板上的情况下采用此结构。
3,上打板一般采用CR12材料,热处理至HRC:50-53,内脱做扣位,直接挂于上模上。
4.1.6:复合模结构六:(见图六)

复合模结构图六
1、此结构为复合模的拼块式结构。
2、此结构适用于当产品较大,上模板(抚顺D2)长度大于800或宽度方向大于420时,上模采用拼块形式,一般拼块长度不宜过长以300左右为宜,但最长不可超过350,拼块与拼块之间用拉扣拉住,拼块内需用方形挡块与上公夹固定,防止凹模受力外涨,此种结构上夹板和下夹板不可分段,对于上下垫板需论情况而定,若要热处理的则需分段,否则则不必分段。
3、此种复合模产品材料一般采用块料形式,所以内导柱和销钉需置于线割机可加工的范围内。
4、内脱板需有内导柱导向,但在模具啤死情况下导柱不可出内脱板背面,内脱和凸凹模内需有顶针脱料,上下顶针做对顶形式,但需错开1/4的距离。
4.2:复合模的共用
4.2.1共用条件
当材料厚度≥0.8mm及模板大小≦350*450mm时,公母模共用和内外脱共用。
4.2.2公母模共用要点
公、母模板割斜度共用,以母模(DIE2)為準,割一刀,公模(DIE)根據材料厚度來放衝裁間隙。線割時,刀口斜度由加工部門自行加以處理。線割穿线孔一般應放在公模板上,因為產品的外形要求嚴格時,可以將在公模(DIE)上的線徑用點焊的方式加以修整,亦可割镶件补平,而母模是刀口,修補后容易損壞。公、母模的關系如(圖一)所示,注解說明可參照下例。

例:公模板(DIE)與母模板(DIE2)共用,以母模(DIE2)為準母模板(DIE2)割,單±0.00公模板(DIE)割單-%6T,(T為材料厚度)
4.2.3內外脫共用要点
內外脫割鋸齒形共用,內脫板(PS)間隙以母模板(DIE2)為基準,放配合間隙單-0.02。外脫板(PS2間隙以公模板(DIE)為基準,有輔助導柱時放配合間隙單+0.05, 無輔助導柱時放配合間隙單+0.02。
內外脫模板關系如(圖二)所示,注解說明可參照下例:
例:內脫板(PS)和外脫板(PS2)共用
內脫板(PS)間隙以母模板(DIE2)為基準,割,單-0.02
外脫板(PS2)間隙以公模板(DIE)為基準,割,單+0.02
4.2.4共用優點
A.降低材料成本
B.節省線割成本
我们是知识搬运工,我们是技术传播者!
东莞潇洒职业培训学校目前开设课程有:学历提升、积分入户、数控编程培训、塑胶模具设计培训,压铸模具设计培训、冲压模具设计培训,精雕、ZBrush圆雕培训、Solidworks产品设计培训、pro/E产品设计培训、AutoformR7工艺分析培训,非标自动化设计、PLC编程、工业机器人、CNC电脑锣操机、平面设计等培训课程,潇洒职业培训学校线下、线上等网络学习方式,随到随学,上班学习两不误,欢迎免费试学!
线上免费试学: xsmj.ke.qq.com
联系电话:18029183887(微信同号)QQ:2958861564
学校官网:www.dgxspx.com 智造人才网:www.58hr.net
学习地址:东莞市横沥镇新城工业区兴业路121号-潇洒职业培训学校
1;所有标注为智造资料网zl.fbzzw.cn的内容均为本站所有,版权均属本站所有,若您需要引用、转载,必须注明来源及原文链接即可,如涉及大面积转载,请来信告知,获取《授权协议》。
2;本网站图片,文字之类版权申明,因为网站可以由注册用户自行上传图片或文字,本网站无法鉴别所上传图片或文字的知识版权,如果侵犯,请及时通知我们,本网站将在第一时间及时删除,相关侵权责任均由相应上传用户自行承担。
[complaint:内容投诉]
智造资料网打造智能制造3D图纸下载,在线视频,软件下载,在线问答综合平台 » 五金模具设计:复合模结构的设计标准,值得收藏学习

