产品定位管位设计标准
管位原则:产品管位可靠,且必须具备产品防反功能
十字圆形管位使用范围:复合模、倒装单剪口模

一般圆形管位使用范围:切边冲孔模 机械手模具 模具预管位 防反管位

外形标准方管位
使用范围:精密级管位,管产品冲切后外形边,适合冲孔模、折弯模等
本管位为工厂批量制作之标准管位,管位必须保证长期库存
设计标准:管位直身一般高模面6mm,顶针高模面5mm,管位尺寸11x12,以短边管料。管位内做M4杯头,孔内攻牙M5,管位孔入料边0.5,管位尺寸详见下图及表格:
标准方形管位设计图示:

标准方形管位批量制作尺寸标准:

外形标准勾头管位使用范围:主要用于浮底、托料板上,也用于拍披锋模具。若方管位到其它型腔边太少模具强度不够时,也应使用标准勾头管位。设计标准:管位尺寸11X15,管位孔11X12,管位做杯头M4,内攻牙M5,方便试模调整时拔出,如图形状。特别提示:1、勾头管位对应上模板件避位孔必须线割,如果属拍披锋模具,画避位孔时以管料边实数,其余三边放大0.3,线割时再要求单边放大0.05。2、在无限位板的浮底和托料板上做勾头时,因直接收螺丝困难,须按下图做压块;如板料属硬料,须于淬火前做好压板沉孔及牙孔(数控铣加工),并须于图上详细标明加工形状尺寸。

标准内孔管位
1、 标准内孔管位是指以产品内圆孔定位的管位,通常分圆针磨制型和下方上圆型。除非客户特别要求,通常采用下方上圆型做法。
2、 下模板和有限位板的浮底或托料板上内孔管位时,须做管位压块,如图“内孔管位压块形式1” 。
3、 内孔管位有顶针时一般直身高模面3-4MM,无顶针时高模面1.5t。
4、 无限位板的浮底和托料板上内孔管位形式如图“内孔管位压块形式2”。
5、 各种形式内孔管位图例:


防反管位
使用范围:标准定位不能对产品进行防反时,必须利用产品内孔或异形边角单独追加防反管位,一般不需拆卸,可直接用圆针磨出,利用其扣位固定于模板上。无限位板的浮底或托料板上做防反管位时,反面收无头螺丝顶死。
根据成形模特点,重点建议采用“7”形管位,便于现场调试:

特殊情况下可采用管位板、“L”形、仿形管位等做法,但须经主管人员认可方可采用。
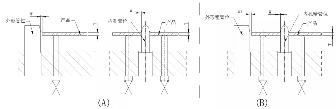
管位定位面与产品定位边的间隙:
产品单独用外形或内孔管位时,管位定位面与产品定位边的间隙W=0.02~0.03,如图(A)示;
产品用内孔精管位,外形粗管位时,内孔精管位定位面与产品定位边的间隙W=0.02~0.03,外形粗管位定位面与产品定位边的间隙W1=0.1,如图(B)示;

冲压弯曲结构应用原理
依据板件成形的变化原理,确保模具的成形工序结构合理,从而缩短模具的调校时间, 提高产品质量.
2.1上折弯示意图;

4.2下折弯示意图:

2.3 折弯压筋设计:

2.3.1 上压筋宽度;
当材料厚度T<0.8時,W取0.8
当材料厚度0.8<T<1.2時,W取1.0
当材料厚度1.2<T時,W取1.2
2.3.2 压筋高度 H;
当材料厚度T<0.8時,H取0.10
当材料厚度0.8<T<1.2時,H取0.2
当材料厚度1.2<T時,H取0.25
2.3.3 对于SUS材料;

当材料轧纹方向与折弯方向一致时,为防止断裂,压筋倒R0.3
对于SUS材料,直角折弯尽量使折弯方向与轧纹方向不平行.
我们是知识搬运工,我们是技术传播者!
东莞潇洒职业培训学校开设课程有:CNC数控编程、塑胶模具设计,压铸模具设计、冲压模具设计, Solidworks/pro/E产品设计、AutoformR7工艺分析,非标自动化设计、PLC编程、文职、电商、平面设计、新媒体等培训课程,潇洒职业培训学校线下、线上、随到随学等学习方式,上班学习两不误,欢迎预约免费试学!
联系电话:18029183455(微信同号)QQ:2799669782
线上免费试学: xsmj.ke.qq.com
1;所有标注为智造资料网zl.fbzzw.cn的内容均为本站所有,版权均属本站所有,若您需要引用、转载,必须注明来源及原文链接即可,如涉及大面积转载,请来信告知,获取《授权协议》。
2;本网站图片,文字之类版权申明,因为网站可以由注册用户自行上传图片或文字,本网站无法鉴别所上传图片或文字的知识版权,如果侵犯,请及时通知我们,本网站将在第一时间及时删除,相关侵权责任均由相应上传用户自行承担。
[complaint:内容投诉]
智造资料网打造智能制造3D图纸下载,在线视频,软件下载,在线问答综合平台 » 五金冲压模具设计“管位设计标准及弯曲模结构应用原理”很简单! ...产品定位管位设计标准冲压弯曲结构应用原理

