模板厚度与材质的标准使用

模板厚度与材质

模板材质说明


1,只做成型的小压料板的材料用CR12 HRC50-52,
2,直接靠刀是硬料的用CR12MOV
3, 浮条类的,一些单冲成型大压料板的用P20或者用CR12不热处理;
4, 压块, 内浮块(大模板里面的),外导尺,外定位,用45#调质;
5,软料刀口冲头用CR12不热处理或者45#; (先用镭割料带用软料试模)
螺丝、销钉、拔牙使用标准
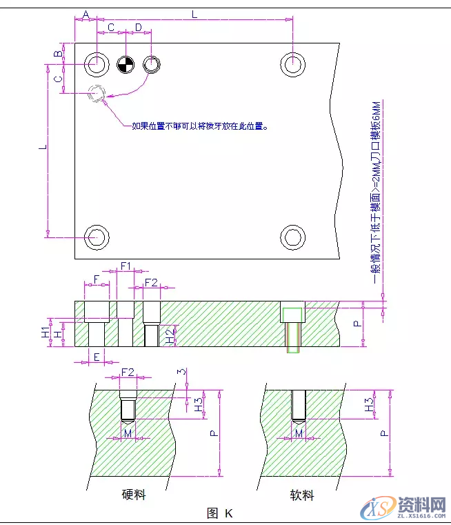
1.模板布螺丝、销钉、拔牙的排布要求:
2.所有设计取值 取整数;
3.在同一块板上螺丝/销钉/拔牙是大小一致的,M10的螺丝,其附近的销钉和拔牙也必须是同型号的
4. 螺丝、销钉尽量布在模板的四个角的位置上,拔牙尽量布在销钉的附近,特殊情况例外;
5.如果拔牙因为板料太厚而采取吊牙形式的,根据其中心受力点可以只设计一个吊牙(太大的模板不允许) ;
6. 销钉孔有效深度标准取值2倍的直径。但没超出表中最大范围的数据可以不沉头。例如23厚的模板,10的销钉孔就可以不沉头。但如果26厚就要沉头深6.0;
7. 拔牙要求:1)客户标准要求、板件15KG以上、型腔内的入子或用定位键固定的板件方做拔牙; 2)硬料拔牙孔要有沉头,深度规定3 0MM的斜沉头,大小参照表格数据,软料不做沉头要求,内顶牙的要求有效牙深为M10以下取10MM,大于等于M10时取15MM,取值以上做沉头,入子、小板件拔牙无客户要求时统一做在沉头孔内,对角排布,最多做两个,大板件或厚料小板件(参照拔牙数据表备注内要求)做起吊牙,单独做,起吊牙排布要对称均匀,防止起吊受力不均起吊困难或起吊后大板倾斜。
8.螺丝头顶部要保证低于模面以下22mm,刀口6MM,但同-类模板的螺丝要统一长度,特殊情况除外;
9. 冲裁冲头与刀口模板的螺丝沉头要低于模板面6mm;10.螺丝锁入模板的有效牙深为螺丝直径的1.5-2.0倍。
11.图示:

1;所有标注为智造资料网zl.fbzzw.cn的内容均为本站所有,版权均属本站所有,若您需要引用、转载,必须注明来源及原文链接即可,如涉及大面积转载,请来信告知,获取《授权协议》。
2;本网站图片,文字之类版权申明,因为网站可以由注册用户自行上传图片或文字,本网站无法鉴别所上传图片或文字的知识版权,如果侵犯,请及时通知我们,本网站将在第一时间及时删除,相关侵权责任均由相应上传用户自行承担。
[complaint:内容投诉]
智造资料网打造智能制造3D图纸下载,在线视频,软件下载,在线问答综合平台 » 晒晒一线模具制造工厂对模板厚度使用与螺丝、销钉、拔牙使用标准 ...

