磁流体密封技术(图文教程)

    介绍了磁流体密封技术的应用原理、特点、研究现状以及未来发展趋势,指出具有高饱和磁化强度的磁流体的制备和具有高磁场强度的密封装置的设计是磁流体密封技术的两大关键要素,磁流体密封技术需加强理论和试验水平研究,带动磁流体密封应用朝着更为深远的方向发展。

  引言

  磁流体又称为磁性液体或铁磁流体,其是一种固液两相组成的胶体材料,固相主要指磁性固体纳米颗粒,液相是指能够承载固体磁性纳米颗粒的液体,磁流体具有液态载体的流动性、润滑性、密封性,同时具有固体纳米颗粒的强磁性及其它特性。简而言之,磁流体组成部分除了包括固相磁性纳米颗粒和液相承载液体(基液)之外,还包括链接固相和液相的中间体——表面活性剂,表面活性剂是一种具有不同极性端的两性物质,其一端可以用来包裹磁性纳米颗粒,另一端伸入基液中使之具有油溶性或水溶性。由于被修饰的磁性颗粒是纳米级别,被表面活性剂包裹的磁性纳米颗粒就可以克服重力沉降等作用而稳定存在于基液中。磁流体在没有外界干扰时无磁吸引力,当外加磁场作用时,由于强磁性纳米颗粒作用才表现出有磁性。由此可见,磁流体一方面可以表现出流体流动性的特点,另一方面可以表现出磁性材料磁性作用特点,所以广泛应用在许多领域,尤其是在密封领域,磁流体密封正在发挥越来越大的作用。

1、磁流体密封原理

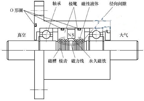
  磁流体密封技术是一种新型的密封方式,它是指利用具有高饱和磁强度的磁流体来进行相关机械设备密封,由于磁流体本身是一种液态流体,具备液态流体的基本特性,以及具有磁性固体材料的磁性,磁流体密封技术就是利用磁流体对磁场的响应变化特性而来。图1是一种典型的利用磁流体进行密封的装置组成结构示意图,磁流体密封主要由两部分构成,即磁流体和经特殊设计的磁流体密封装置,磁流体密封装置包括导磁轴、磁极、不导磁座、轴承、永久磁铁等部分,磁流体密封装置的设计使之具有一定的磁场间隙,当磁流体注入磁场间隙时,在磁场间隙周围磁场的作用下,由于磁流体本身的液态流动性以及磁性作用,磁场间隙会充满磁流体磁场间隙的环形设计会让磁流体在磁场间隙中形成一种特殊的“液体O形密封圈”,由于磁流体本身特性以及密封装置的结构设计,该O形圈可以稳定存在,对密封介质起到一种良好的密封作用,“液体O形密封圈”的形成除了和磁流体自身磁特性有关之外,还与磁场间隙磁场强度有关。实践证明,为了提高整个密封装置的密封效果和承压能力,需要在磁流体密封结构中构成多个磁性回路,即多级磁流体密封结构,密封时存在压差作用,当该压差作用于“液体O形密封圈”之上时磁流体会略微移动,由于磁流体对外界磁场的响应作用,该“液体O形密封圈”具有保持和恢复原始状态的特性,由此产生了对抗压差的磁力,这就是磁流体的密封作用原理。

磁流体密封技术(图文教程),磁流体密封技术,要求,采用,设计,第1张

图1 磁流体密封装置组成结构示意图

2、磁流体密封特点

  密封主要目的是保护工作介质,防止工作介质泄漏或者污染,随着工业的快速发展密封在工业设备及机械制造领域中起着越来越重要的作用,密封不良会造成密封介质泄漏,污染环境,同时外界杂质侵入设备污染密封介质,严重影响生产正常运行,造成巨大的生产浪费和经济损失。静密封和动密封是密封的两种基本形式,静密封是指机械设备中相对静止件之间的密封,动密封指相对运动件间的密封。目前传统的密封方式还是主要使用橡胶件密封,橡胶件包括丁腈橡胶、氢化丁腈橡胶、硅橡胶、氟橡胶等,橡胶件密封应用较为广泛,是目前使用量最大的一种密封方式,但是橡胶件密封存在易膨胀溶解、易被密封件磨损、易污染密封介质、易老化等诸多缺点,橡胶件密封容易造成密封性能差,使密封设备丧失密封性能。

  相对于传统密封缺陷,磁流体密封利用磁力来密封,具有传统密封无法比拟的优越性,其主要特点有以下几点:

  (1)无泄漏密封:磁流体是一种具有高饱和磁强度的流体,目前利用高饱和磁强度磁流体和设计精良的密封装置可以对介质进行严密的高度稳定的动密封或静密封,并且几乎没有泄露。原因在于磁流体可以充满整个密封设备的密封间隙,形成一种“液体O形密封圈”,同时改变密封装置磁场强度,磁流体粘度也会随之改变,从而可以加强磁流体密封作用,进一步减小了密封介质泄露的可能性。这种特性用来密封腐蚀性气体以及有毒、易燃易爆气体非常重要。

  (2)无磨损密封:传统接触式密封由于接触元件之间的摩擦磨损大,一方面影响密封件使用寿命,另一方面影响机械设备功率,造成机械设备功率损耗大。磁流体密封避免了密封件和旋转轴的摩擦而产生碎屑,同时磁流体作为一种油基流体,本身亦具有润滑作用,其对保护机械设备零部件减少摩擦磨损具有重要作用。

  (3)无污染密封:磁流体密封件由于使用液态磁流体作为密封元件,其本身不存在摩擦磨损,不会产生磨削,同时磁流体具有极低的饱和蒸汽压,可以保证即使真空状态下也不会对密封介质造成污染,磁流体密封可以有效避免对密封介质的外来和内在污染。

  (4)无方向密封:磁流体密封装置的设计使其两边都可以承受不同压力,如果需要改变密封装置承压方向,对磁流体而言无需增加任何元件就可以实现,磁流体密封没有方向性,防外漏和内漏一样有效。

  (5)无损耗密封:磁流体一般以油性液态物质做为基液,在装有轴承的密封件中,磁流体在旋转状态下本身具有极小的内摩擦力,发热低,大大减小了因为密封件的摩擦造成机械功率的损耗,磁流体密封功率损耗小,因而亦可使用于高速旋转密封。

  (6)长寿命密封:磁流体密封作为一种特殊的密封件其使用寿命主要取决于磁流体寿命,磁流体本身是一种稳定的流体,其有效寿命在40°C下可达20年而保持磁流体特性不变。并且磁流体密封结构构造系统简单,工作性能可靠。

  (7)稳定性密封:由于磁流体既具流体效应,又有磁场作用下黏度变化效应,所以磁流体密封不会因为产生瞬时过压击穿时而造成密封性能的损失,在使用过程中,即使出现因磁流体导致密封装置失效情况,只需重新更换或者补加磁流体即可。

3、磁流体密封研究现状

  实现磁流体密封有两大关键技术要素: 一是满足使用要求的高性能磁流体的制备; 二是具有优异密封性能的磁流体密封装置的设计。磁流体密封现状要就主要集中在磁流体制备技术研究、磁流体密封结构的研究。

  磁流体是由基载液、磁性微粒和表面活性剂3部分组成,为了得到稳定的磁性液体,强磁性微粒必须足够小,强磁性微粒主要包括四氧化三铁、氮化铁等物质,表面活性剂一般是指具有两亲性结构的有机物,其一端为极性基团,极性基团包覆在磁性粒子表面防止其团聚,另一端为非极性基团,主要指长链的有机分子,非极性基团伸入基液中,使磁性粒子具有亲水或者亲油性,磁性粒子能够稳定存在并溶入基液中的前提是基液要与表面活性剂具有相似结构。基液是磁性粒子能够稳定存在的介质,基液不仅应该满足低黏度和高化学稳定性等特性,同时还需要满足低蒸发速率和耐高温等特性,基液的性质决定了磁流体的用途。目前,磁流体制备技术主要包括磁性纳米粒的制备、磁性纳米粒的表面改性以及磁性流体的制备,主要制备方法有球磨法、表面活性剂法、化学沉淀法、微乳液法、气相液相反应法等。无论哪种制备方法,均需要根据实际使用状况的不同,选取合适的基液和表面活性剂,制备出高性能、高稳定性的磁流体。良好的磁性液体必须具有下列性能:

  (1)应具有较大的磁饱和特性,磁饱和特性是磁性材料的一种固有特性,较大的磁饱和特性可以保证磁流体对外界磁场强度的最大响应,其可以使尽可能大的磁场通过磁流体,从而给磁性纳米颗粒提供尽可能大的能量,使磁流体具有更为明显的磁特性。

  (2)应具有优良的磁化和退磁特性,磁化和磁退效应是指磁流体在磁场作用下的响应变化效果,磁流体的磁流变效应是一种可逆变化。良好的磁流体要求磁导率很大,内聚力较小,同时具有狭窄的磁滞回线。

  (3)应具有高度磁化和稳定的性能,磁流体的磁化特性和稳定性能取决于磁性液体中强磁性纳米粒子的分布,磁性纳米粒子颗粒大小均一并且分布均匀才能保证磁流体具有高度磁化和稳定的性能,这就要求磁流体制备过程中需要控制好磁性纳米粒子均匀分布。

  (4)应具有较小的能量损耗,磁流体利用磁化作用达到密封目的,工作期间会由于磁滞等现象造成损耗,磁流体的制备应该保证该损耗应该是一个很小的量。

  (5)应具备较好的磁粘效应,当没有外加磁场时,磁流体和普通流体一样,呈牛顿流体流动特性,当存在外加磁场时,磁流体呈现非牛顿流体特性,磁流体粘度随着磁场变化而变化,可以通过控制外加磁场强度来调控磁流体粘度变化。

  (6)应具有极高的稳定性,尤其是在一定温度范围内,需保证磁性液体的流变性能不会因温度的变化而发生剧烈变化。

  (7)应具有较低的制备成本,磁流体的制备原料和方法应该保证其成本低廉。

  磁流体密封能力除了和磁流体本身特性有关之外,还与磁流体密封结构设计密切相关。磁性液体密封的结构设计形式很多,不同结构设计形式对磁流体密封性能影响不一样。磁流体密封装置结构设计可以通过计算磁场间隙磁场强度分布计算来确定。钱济国等人根据流体静力学和动力学,分别阐述了磁性液体静密封和动密封的分析方法,关于密封装置磁场间隙内磁性液体密封的运动方程做了详细说明。推导出了磁性液体密封能力的计算公式,进一步由公式明确了影响磁性液体密封能力的主要因素。作者指出磁性液体轴封的静密封能力易于保证,对于动态密封,影响因素较为复杂,不仅仅需要考虑密封装置磁场设计,还需考虑磁流体本身磁特性和液态流动性,磁流体动态密封能力的提高需从多方面综合考虑,一方面可以提高磁流体本身的磁饱和强度,增大外加磁场强度,另一方面可以减小磁流体本身密度,降低旋转轴转速,还可以通过采用多级密封结构形式来提高磁流体动密封能力。

4、磁流体密封未来发展趋势

  随着经济的日益发展,工业设备等相关领域对密封性能要求越来越高,传统的密封方式已经难以满足某些特殊场合的密封要求,磁流体技术的发展推动了磁流体密封技术的发展,磁流体密封技术在密封领域正发挥越来越重要的作用。磁流体密封发展趋势要求需要提高密封可靠性及密封能力,针对该问题,国内外学者从诸多方面来研究了磁性流体的密封。首先是随着计算机技术的发展,利用解析方法分析密封间隙处的磁场强度和磁场强度分布越来越普遍,从而使磁流体密封更直观的被人们所认知;除了理论研究之外,研究人员还通过设计不同的磁流体密封装置以及装载不同性质的磁流体来研究影响磁性流体密封能力的各种因素。磁流体密封技术需拓宽磁流体密封应用场合,该项技术将来会朝着更为深远的方向发展,磁流体密封技术未来发展方向主要体现在以下几个方面:

  (1)开发制备方法简单,稳定性更好,饱和磁化强度更高,磁性微粒材料选择面更宽,成本低廉的高性能磁流体及各种磁流体复合材料;通过对新材料以及新制备工艺的研发来开拓新的磁流体制备研究领域。

  (2)利用现代分析手段,研究磁性纳米颗粒在基液中稳定分散机制,研究不同条件下磁流体磁粘效应以及其它磁特性。

  (3)深入研究磁流体密封在不同密封环境条件下对磁流体密封影响的优化设计工作。

  (4)加强磁流体密封技术理论研究工作,以磁流体密封原理为基础,利用计算机等技术强化磁流体理论研究,深入研究磁流体密封磁场分布及影响因素。

  (5)加强磁流体密封试验研究工作,通过制备不同特性的磁流体和设计不同形式的磁流体密封装置研究影响磁流体密封能力的因素。

  (6)加强磁流体密封实际应用推广工作。

5、结论

  磁流体密封是一项不断发展并逐步走向成熟和完善的技术,该技术在国外已经得到了广泛应用,国内也在逐渐推广应用。同时,国内外各高等院校和研究单位正在进行磁流体密封理论研究和实践使用研究工作,并逐步将磁流体密封技术应用到各种密封领域。

免责声明:
1;所有标注为智造资料网zl.fbzzw.cn的内容均为本站所有,版权均属本站所有,若您需要引用、转载,必须注明来源及原文链接即可,如涉及大面积转载,请来信告知,获取《授权协议》。
2;本网站图片,文字之类版权申明,因为网站可以由注册用户自行上传图片或文字,本网站无法鉴别所上传图片或文字的知识版权,如果侵犯,请及时通知我们,本网站将在第一时间及时删除,相关侵权责任均由相应上传用户自行承担。
[complaint:内容投诉]
智造资料网打造智能制造3D图纸下载,在线视频,软件下载,在线问答综合平台 » 磁流体密封技术(图文教程)