在制造型企业中,设计师往往需要花大量的时间和精力来处理工程图以便用于生产制造。但是,如果没有专业高效的绘制设计软件支持,设计师们的工作量会变得更加的繁重,特别是绘制复杂产品装配图时,编制物料清单及气泡标注更是个让人头疼的工作。
对于上述的问题,中望3D提供强大的BOM表及自动气泡功能就能够完美高效地解决,下面我们一起来体验一下吧。
首先,中望3D提供的BOM表功能,能够轻松生成我们想要的物料清单。点击“BOM表”功能键,选择一个视图,点击确定即可生成产品的BOM表,如图1所示。

图1 生成产品BOM表
当然,我们也可以通过不同的设置,实现很多功能,满足我们的个性化需求,如多装配层级的遍历控制、BOM表格自定义及BOM表模板保存等。
中望3D提供三种不同的装配层级控制:
● 仅顶层 – 罗列零件和子装配,但不罗列子装配的子组件
● 仅零件 – 罗列零件和子装配的子零件,但不罗列任何装配对象
● 缩进 – 罗列装配的所有层级结构,也可设定最大的
通过相应的层级控制,我们可以对图2的产品生成不同的BOM表,如图3所示。

图2 产品
图3 不同层级控制所生成的BOM表
中望3D还可以设置不同的表格样式,满足使用者的个性化需求。点击“BOM表”功能键,下拉至表格式选项,双击“有效的”栏内容(图4),可以增加表格列内容,双击“选定”栏内容,则反之。

图4 表格式选项
生成所需要的BOM表后,点击BOM表,右键选择保存为模板,如图5所示,这样,下次再生成BOM表时,直接下拉至模板选项,勾选“模板”,即可使用已保存的模板,有利于提高工作效率,避免重复的工作。

图5 保存为模板
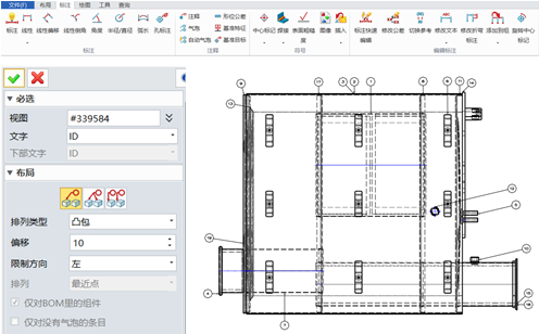
除此之外,中望3D还提供高效的自动气泡功能,能够自动生成气泡,帮助设计师高效完成设计任务。具体操作如下:
选择标注模块中的“自动气泡”功能,选定一个视图,点击确定,即可生成图6所示气泡。

图6 自动气泡功能
中望3D强大的BOM表功能,不仅可以帮助设计师便捷高效地完成设计工作,以及清晰、系统地掌握对应的数据信息,与此同时,设计师也可以根据需要,将现有的BOM表保存为模板,方便二次调用,切实提高工作效率。
1;所有标注为智造资料网zl.fbzzw.cn的内容均为本站所有,版权均属本站所有,若您需要引用、转载,必须注明来源及原文链接即可,如涉及大面积转载,请来信告知,获取《授权协议》。
2;本网站图片,文字之类版权申明,因为网站可以由注册用户自行上传图片或文字,本网站无法鉴别所上传图片或文字的知识版权,如果侵犯,请及时通知我们,本网站将在第一时间及时删除,相关侵权责任均由相应上传用户自行承担。
[complaint:内容投诉]
智造资料网打造智能制造3D图纸下载,在线视频,软件下载,在线问答综合平台 » 中望3DBOM表助力轻松绘制工程图(图文教程)

