CAD图纸一定需要比例的原因分析(图文教程)

    一张图纸就像是一份严谨又详细的产品说明书,其意义就在于将单个工作成果进行总结展示,并以此为依据,提供给各方进行协助配合,从而达到共同的目标。而比例这一特性,就是出于图纸严谨这一特性而产生的。下面以样例图纸为例,说明比例的含义:

 

CAD图纸一定需要比例的原因分析(图文教程),CAD图纸一定需要比例的原因分析 ,产品,尺寸,这个,第1张

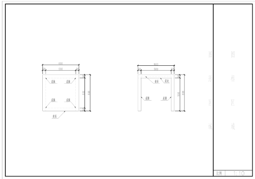
    上图与下图为同一张桌子在不同比例的A3图纸下的样子,可以看到,在比例由1:5变成1:10后,桌子在图中的大小也变成了原来的1/2。需要注意的是,图中实体类的图元大小发生了改变,而如标注、说明文字等注释类的图元,其大小却是不变的.

CAD图纸一定需要比例的原因分析(图文教程),CAD图纸一定需要比例的原因分析 ,产品,尺寸,这个,第2张

    假设一个制作家具的人拿到这份图纸后,不需要任何其他的面对面沟通,他就能够知道,我们需要制作一个方形的桌子 ,桌子变长均为600毫米,有四条腿,每条腿长550毫米,依靠四条宽高均为50毫米的桌边与桌面相连。其中,方形这个信息是由图中的实体形状线获得的,而尺寸由图中的尺寸标注上写的数字获取,每个东西分别是什么功能,由图中的说明文字获得解释,一份粗糙的说明书大概就完成了。

 

    那么,在一份具有足够准确尺寸标注的图纸里,我们还需要按照比例来绘制这些图形的原因是什么?关键就是在于第一步的实体形状线,只有在按照比例绘制的图纸里,我们才能第一眼就对这个物体有一个直观的认识,比如这是一个正方形而不是长方形,比如这张桌子的桌面厚度与他的高度相比是非常小的,桌子下面有较为充裕的空间,避免了潜意识内的错误认识而引起协作各方不必要的工作量。

 

    同时,出于节约纸张的目的,我们自然是想在一张图内放下实体形状越多越好,字体越小越好,比例的分母自然也是越大越好。然而,人眼的识别能力是有限的,过于微小的字体和图形,在阅读起来是极容易出现幻觉和误差的,所以,每张图比例的产生的需要根据图纸的大小、注释文字的多少进行合理的分配,在识别难易度与信息量之间找到一个平衡点。

免责声明:
1;所有标注为智造资料网zl.fbzzw.cn的内容均为本站所有,版权均属本站所有,若您需要引用、转载,必须注明来源及原文链接即可,如涉及大面积转载,请来信告知,获取《授权协议》。
2;本网站图片,文字之类版权申明,因为网站可以由注册用户自行上传图片或文字,本网站无法鉴别所上传图片或文字的知识版权,如果侵犯,请及时通知我们,本网站将在第一时间及时删除,相关侵权责任均由相应上传用户自行承担。
[complaint:内容投诉]
智造资料网打造智能制造3D图纸下载,在线视频,软件下载,在线问答综合平台 » CAD图纸一定需要比例的原因分析(图文教程)