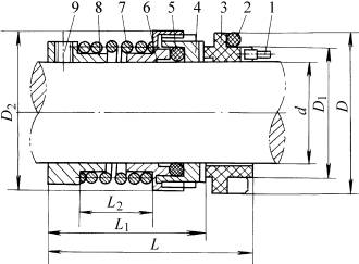
103型机械密封(图文教程)

    103型机械密封的主要尺寸           (mm)

103型机械密封(图文教程),103型机械密封,尺寸,第1张

1—防转销   2、5—辅助密封圈   3—静止环   4—旋转环   6—推环   7—弹簧   8—弹簧座   9—紧定螺钉

规 格

d

D2

D1

D

L

L1

L2

16

16

33

25

33

56

40

12

18

18

35

28

36

60

44

16

20

20

37

30

40

63

44

16

22

22

39

32

42

67

48

20

25

25

42

35

45

67

48

20

28

28

45

38

48

69

50

22

30

30

52

40

50

75

56

22

35

35

57

45

55

79

60

26

40

40

62

50

60

83

64

30

45

45

67

55

65

90

71

36

50

50

72

60

70

94

75

40

55

55

77

65

75

96

77

42

60

60

82

70

80

96

77

42

65

65

92

80

90

111

89

50

70

70

97

85

97

116

91

52

75

75

102

90

102

116

91

52

80

80

107

95

107

123

98

59

85

85

112

100

112

125

100

59

90

90

117

105

117

126

101

60

95

95

122

110

122

126

101

60

100

100

127

115

127

126

101

60

110

110

141

130

142

153

126

80

120

120

151

140

152

153

126

80

免责声明:
1;所有标注为智造资料网zl.fbzzw.cn的内容均为本站所有,版权均属本站所有,若您需要引用、转载,必须注明来源及原文链接即可,如涉及大面积转载,请来信告知,获取《授权协议》。
2;本网站图片,文字之类版权申明,因为网站可以由注册用户自行上传图片或文字,本网站无法鉴别所上传图片或文字的知识版权,如果侵犯,请及时通知我们,本网站将在第一时间及时删除,相关侵权责任均由相应上传用户自行承担。
[complaint:内容投诉]
智造资料网打造智能制造3D图纸下载,在线视频,软件下载,在线问答综合平台 » 103型机械密封(图文教程)