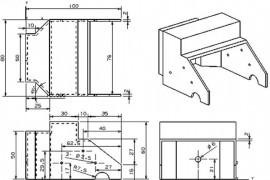
拉伸